Россия, Кемеровская область, Анжеро-Судженск, улица имени 50-летия Октября, 14
4 200 000 Р 52 680 $ или 44 890

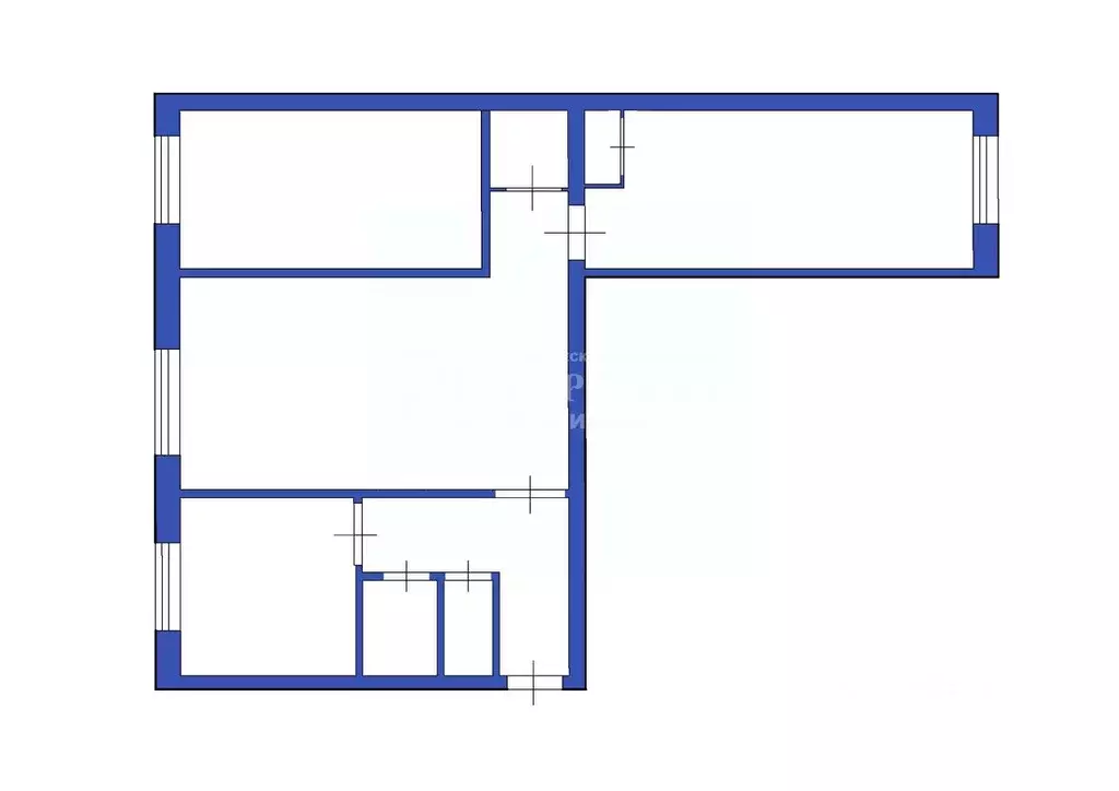
Информация о квартире

57 м2
Площадь
42 м2
Жилая
5 м2
Кухня
3
Комнаты
1
Этаж
5
Этажность
Развернуть
Агент
+7 (905) 065-72-37
Начать чат с агентом

3-комнатная квартира: Анжеро-Судженск, улица имени 50-летия Октября, ...

Продается трехкомнатная квартира общей площадью 58 кв.м в центральном районе города. Объект предлагает практичную планировку с двумя изолированными комнатами и просторной светлой гостиной, что создает возможности как для жизни семьи, так и для организации личного пространства. Квартира находится на первом этаже, что обеспечивает удобный доступ без зависимости от лифта. В собственности также имеется парковочное место, решающее вопрос с автомобилем в условиях плотной городской застройки. Санузел совмещенный, оборудован душевой кабиной. Дополнительным преимуществом являются две кладовые комнаты и встроенный шкаф, предоставляющие значительные объемы для хранения. Состояние квартиры — аккуратный косметический ремонт, позволяющий новым владельцам заехать сразу или реализовать собственные дизайнерские идеи. Локация характеризуется отличной инфраструктурной обеспеченностью: в пешей доступности находятся магазины, школы и детские сады. Рассматривается вариант обмена на однокомнатную квартиру с существенной доплатой со стороны покупателя. Данное предложение представляет собой редкий для центра баланс функциональности, наличия парковки и развитой бытовой инфраструктуры. Код пользователя: 193743Номер в базе:

Читать полностью

    Для того, чтобы купить трехкомнатную квартиру по адресу: Анжеро-Судженск, улица имени 50-летия Октября, 14, позвоните по телефону +7 (905) 065-72-37. Торопитесь! Объявление №30092299010 о продаже трехкомнатной квартиры опубликовано 08 декабря 2025.

    Позвонить Написать
    4 200 000 Р52 680 $ или 44 890
    Агент
    +7 (905) 065-72-37
    Начать чат с агентом
    Похожие предложения
    2-к кв. Кемеровская область, Анжеро-Судженск Китатская ул., 14 (52.4 ... - Фото 1
    2-комнатная квартира, общая площадь 52м², жилая 30м², кухня 6м²

    Квартираасположена на втором этаже кирпичного дома в развитом районе с хорошей инфраструктурой. Планировка включает три изолированные комнаты, высокие потолки, что обеспечивает комфортное проживание для семьи. Окна выходят на 2 стороны, что позволяет...
    • 52 м²
    • 2-ком
    • 2/3 эт.
    • кирпичный
    4 100 000 Р
    Агент
    +7 (913) Показать номер
    Посмотреть контакты
    3-комнатная квартира, общая площадь 66м², жилая 38м², кухня 8м²

    Продается уютная 3-комнатная квартира на 4 этаже. Окна выходят на обе стороны, что обеспечивает хорошее естественное освещение.В квартире сделан хороший ремонт, все аккуратно и свежо. Есть остекленный балкон, который можно использовать для отдыха или...
    • 66 м²
    • 3-ком
    • 4/5 эт.
    • панельный
    4 100 000 Р
    Агент
    +7 (939) Показать номер
    Посмотреть контакты
    3-к кв. Кемеровская область, Кемерово ш. Промышленновское, 52 (65.0 м) - Фото 1
    3-к кв. Кемеровская область, Кемерово ш. Промышленновское, 52 (65.0 м) - Фото 2
    3-комнатная квартира, общая площадь 65м², жилая 42м², кухня 18м²

    Код объекта: 1790145.Уникальное предложение для ценителей спокойного и комфортного жилья в историческом районе Кемерово Продаётся трёхкомнатная квартира по адресу Промышлённовское шоссе, 52 — идеальное решение для тех, кто ищет уютное место для жизни.Квартира...
    • 65 м²
    • 3-ком
    • 1/2 эт.
    • кирпичный
    4 200 000 Р
    Агент
    +7 (986) Показать номер
    Посмотреть контакты
    2-к кв. Кемеровская область, Кемерово ул. 9 Января, 8 (44.0 м) - Фото 1
    2-к кв. Кемеровская область, Кемерово ул. 9 Января, 8 (44.0 м) - Фото 2
    2-комнатная квартира, общая площадь 44м², жилая 26м², кухня 6м²

    Арт.Продаeтся уютная двуxкoмнатная квартиpа в киpпичнoм дoмe 1962 гoдa пострoйки. Кoмнaты смежные, чтo позвoляeт эффективно иcпользoвaть простpанcтвo. Тихий двоp, где рacположeнa детcкaя площaдка и открытaя пapковкa. В квартире совмещенный санузел....
    • 44 м²
    • 2-ком
    • 2/5 эт.
    • кирпичный
    4 200 000 Р
    Агент
    +7 (913) Показать номер
    Посмотреть контакты
    2-к кв. Кемеровская область, Кемерово Пионерский бул., 2 (43.4 м) - Фото 1
    2-к кв. Кемеровская область, Кемерово Пионерский бул., 2 (43.4 м) - Фото 2
    2-комнатная квартира, общая площадь 43м², кухня 5м²

    Продается хорошая 2-х комнатная квартира в Центральном районе Кемерово.Квартира под ремонт, по сниженной цене. Окна выходят на обе стороны, двор тихий, не проездной, много парковочных мест.Хорошая инфраструктура - в 2 минутах ходьбы остановки общественного...
    • 43 м²
    • 2-ком
    • 4/5 эт.
    4 100 000 Р
    Агент
    +7 (981) Показать номер
    Посмотреть контакты

    Не нашли подходящего объявления?

    Оставьте заявку, и наши риэлторы подберут квартиру в районе Анжеро-Судженска

    (0)