6 290 000 Р 80 410 $ или 69 260

Информация о квартире

56 м2
Площадь
38 м2
Жилая
7 м2
Кухня
3
Комнаты
4
Этаж
5
Этажность

Дополнительная информация

Тип дома
кирпичный
Развернуть
Агент
+7 (985) 658-32-13
Начать чат с агентом

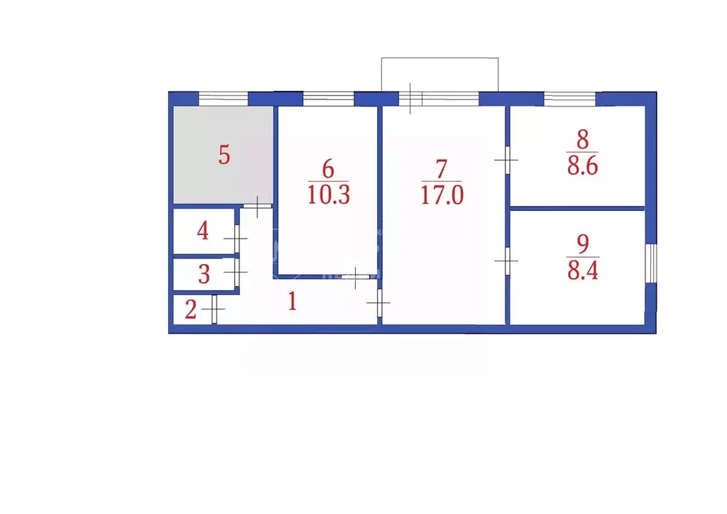
3-к кв. Кемеровская область, Белово Железнодорожная ул., 40 (56.9 м)

Продам 3-х комнатную квартиру, 56.9 кв. м., на 4/5 этаже, по ул. Железнодорожной, дом 40.Планировка комнат изолированная, сан. узел раздельный.Квартира тёплая, светлая.После капитального ремонта. Электропроводка заменена (медь), трубы водоснабжения - полипропилен, радиаторы отопления - биметалл. Окна ПВХ, натяжой потолок, на полу настелен новый качественный линолеум. Установлены новые межкомнатные и входная двери. Балкон остеклён панорамными стеклопакетами, пол с подогревом.Доброжелательные соседи, чистый подъезд, на площадке 2 квартиры. Хорошее месторасположение.Один собственник. Квартира освобождена от мебели и готова к заселению. На данный момент в ней никто не проживает. Возможна продажа по ипотеке, быстрый выход на сделку, с одномоментной передачей ключей.Торг приветствуется

Читать полностью

    Для того, чтобы купить трехкомнатную квартиру по адресу: Белово, ул. Железнодорожная, 40, позвоните по телефону +7 (985) 658-32-13. Торопитесь! Объявление №30092120093 о продаже трехкомнатной квартиры опубликовано Вчера.

    Позвонить Написать
    6 290 000 Р80 410 $ или 69 260
    Агент
    +7 (985) 658-32-13
    Начать чат с агентом
    Похожие предложения
    3-комнатная квартира: Белово, Железнодорожная улица, 40 (56.9 м) - Фото 1
    3-комнатная квартира: Белово, Железнодорожная улица, 40 (56.9 м) - Фото 2
    3-комнатная квартира, общая площадь 56м², жилая 38м², кухня 7м²

    Продам 3-х комнатную квартиру, 56.9 кв. м., на 4/5 этаже, по ул. Железнодорожной, дом 40.Планировка комнат изолированная, сан. узел раздельный.Квартира тёплая, светлая.После капитального ремонта. Электропроводка заменена (медь), трубы водоснабжения -...
    • 56 м²
    • 3-ком
    • 4/5 эт.
    6 290 000 Р
    Агент
    +7 (905) Показать номер
    Посмотреть контакты
    4-к кв. Кемеровская область, Белово ул. Ленина, 14 (60.8 м) - Фото 1
    4-к кв. Кемеровская область, Белово ул. Ленина, 14 (60.8 м) - Фото 2
    4-комнатная квартира, общая площадь 60м², жилая 44м², кухня 6м²

    Код объекта: 1949130. Ищете идеальное жильё для вашей семьи в Белово? Представляем вашему вниманию просторную четырёхкомнатную квартиру по адресу: улица Ленина, 14. Это отличное предложение для семей, которые ценят комфорт и удобство.Квартира расположена...
    • 60 м²
    • 4-ком
    • 3/5 эт.
    • панельный
    6 300 000 Р
    Агент
    +7 (986) Показать номер
    Посмотреть контакты
    4-комнатная квартира: Белово, улица Ленина, 14 (60.8 м) - Фото 1
    4-комнатная квартира: Белово, улица Ленина, 14 (60.8 м) - Фото 2
    4-комнатная квартира, общая площадь 60м², жилая 44м², кухня 6м²

    Код объекта: 1949130. Ищете идеальное жильё для вашей семьи в Белово? Представляем вашему вниманию просторную четырёхкомнатную квартиру по адресу: улица Ленина, 14. Это отличное предложение для семей, которые ценят комфорт и удобство.Квартира расположена...
    • 60 м²
    • 4-ком
    • 3/5 эт.
    6 300 000 Р
    Агент
    +7 (905) Показать номер
    Посмотреть контакты
    3-к кв. Кемеровская область, Белово ул. Маркса, 12 (68.4 м) - Фото 1
    3-к кв. Кемеровская область, Белово ул. Маркса, 12 (68.4 м) - Фото 2
    3-комнатная квартира, общая площадь 68м², кухня 8м²

    Продается 3кмн. квартира , на самом удобном 3 этаже общая площадь-68.4 кв.м.Просторная кухня-8 кв.м. 2 ЛОДЖИИ с выходом из зала и спальни- застекленыОКНА ПВХ ПОТОЛОК- натяжной ( комнаты, кухня )ПОЛ- выровнен ( кроме кухни и коридора ) - покрытие линолеум...
    • 68 м²
    • 3-ком
    • 3/5 эт.
    • кирпичный
    6 390 000 Р
    Агент
    +7 (918) Показать номер
    Посмотреть контакты
    4-к кв. Кемеровская область, Междуреченск просп. Шахтеров, 16 (78.8 м) - Фото 1
    4-к кв. Кемеровская область, Междуреченск просп. Шахтеров, 16 (78.8 м) - Фото 2
    4-комнатная квартира, общая площадь 78м², жилая 49м², кухня 8м²

    Код объекта: 1802653.В продаже квартира для большой семьи — просторная четырёхкомнатная квартира в Междуреченске Комнаты изолированы, что обеспечивает уединение и комфорт для каждого члена семьи. Две лоджии позволят вам наслаждаться видами на улицу и...
    • 78 м²
    • 4-ком
    • 1/8 эт.
    • панельный
    6 300 000 Р
    Агент
    +7 (983) Показать номер
    Посмотреть контакты

    Не нашли подходящего объявления?

    Оставьте заявку, и наши риэлторы подберут квартиру в районе Белово

    (0)