Реализация объекта недвижимости приостановлена

Информация о квартире

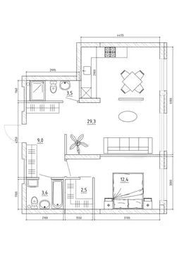
62.0 м2
Площадь
36.0 м2
Жилая
3
Комнаты
4
Этаж
10
Этажность

Дополнительная информация

Тип дома
панельный
Развернуть

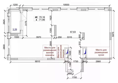
3-к кв. Кемеровская область, Кемерово Южный мкр, 10-й мкр, Весна жилой ...

АКЦИИ МЕСЯЦА В ЖК СЕМЕЙНЫЙ КВАРТАЛ ВЕСНА : РАССРОЧКА БЕЗ ПРОЦЕНТОВ И СКИДКА НА ПОКУПКУ КВАРТИР ДО 810 219 РУБ. КВАРТИРЫ С ГОТОВОЙ НА 100 ОТДЕЛКОЙ ПОД КЛЮЧ ПРEИMУЩЕСTВА: Завершение строительства и получение ключей до конца Декабря 2025 года; Планировки от одной до четырех комнат; Дом построен по современной трехслойной панельной технологии, что обеспечивает высокую теплостойкость и комфортное проживание в любое время года;Высота потолков 2,6 метра; От 3-х до 4-х квартир на этаже; Лоджия в каждой квартире; Все жители комплекса будут избавлены от шума и грязи, т.к. все ремонтные работы будут уже завершены;О ЖК СЕМЕЙНЫЙ КВАРТАЛ ВЕСНА :В непосредственной близости расположено 5 общеобразовательных ШКОЛ и 13 ДЕТСКИХ САДОВ;ЖИВИТЕ БЕЗ ПРОБОК Транспортная доступность также на высоком уровнеядом с домом есть автобусные и трамвайные остановки, которые позволяют добраться до центра города всего за 20-30 минут и возможность добраться на трамвае без городских пробок в любое время;БЕЗОПАСНОСТЬ и КОМФОРТ жителей являются приоритетом комплекса, поэтому все необходимые меры будут предприняты для создания благоприятной среды для всех возрастных групп;Комплекс из 5 домов по 10 этажей, ВНУТРЕННИЙ ДВОР оборудован детскими площадками. Также планируется строительство детского сада на территории комплекса;ЗАБУДЬТЕ О ПОИСКЕ ПАРКОВОЧНОГО МЕСТА Для удобства жителей предусмотрена большая открытая парковка на 350 машиномест;Данный комплекс обслуживает СОБСТВЕННАЯ УПРАВЛЯЮЩАЯ КОМПАНИЯ с многолетним опытом.Приобрести квартиру можно одним из способов:- Ипотека от 6 ;- Обмен Вашей старой квартиры на новую;- Материнский капитал.НАПИШИТЕ, ЧТОБЫ ДОГОВОРИТЬСЯ О ПРОСМОТРЕ КВАРТИРЫ И ПОЛУЧИТЬ ПЕРСОНАЛЬНОЕ ПРЕДЛОЖЕНИЕ ПО ПОКУПКЕ С УЧЕТОМ АКЦИЙ Адрес отдела продаж: г. Кемерово, ул. Веры Волошиной, 22а к1Семейный квартал Веснаасположен в самом сердце Южного микрорайона, между улицами им. Веры Волошиной, 1-я Линия и ул. Радищева ПИШИТЕ/ЗВОНИТЕ, МЫ ВСЕГДА НА СВЯЗИ И ГОТОВЫ ПРОКОНСУЛЬТИРОВАТЬ ПО ЛЮБОМУ ВОПРОСУ macro-1199419

Читать полностью

    Реализация объекта недвижимости приостановлена

    Не нашли подходящего объявления?

    Оставьте заявку, и наши риэлторы подберут квартиру в новостройке в районе Кемерово

    (0)