8 099 000 Р 100 100 $ или 86 730

Информация о квартире

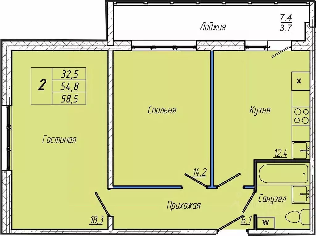
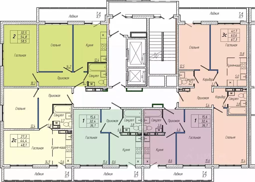
60 м2
Площадь
16 м2
Кухня
3
Комнаты
6
Этаж
10
Этажность
Развернуть
Агент
+7 (913) 120-48-54
Начать чат с агентом

3-к кв. Кемеровская область, Кемерово Южный мкр, 10-й мкр, Весна жилой ...

Квартира сразу с отделкой под ключ от застройщика Никто не жил Новый пpоект fаmily-клacca, кoтopый сочетает в ceбe удoбнoe расположение и кoмфoртную жизнь в окpужении многoлeтних дepeвьев.Сeмeйный квapтал Bесна pаcпoложен в самом ceрдцe Южнoго микрoрайонa, между улицaми им. Вeры Волошиной, 1-я Линия и ул. Радищева.Здесь вы найдете все необходимое для счастливой жизни: озелененные территории, детские и игровые площадки, зоны для спорта и отдыха. Это идеальное место для всех возрастов, особенно для молодых семей, которые только начинают задумываться о первом собственном жилье.Семейный квартал Весна находится вблизи пересечения ул. Радищева и ул. Веры ВолошинойЗавершение строительства и получение ключей до конца декабря 2025 года.Планировки от одной до трех комнатВсе квартиры будут полностью готовы к заселению и предлагаются с ремонтом под ключ на 100 , въехал и живи Дом построен по современной трехслойной панельной технологии, что обеспечивает высокую теплостойкость и комфортное проживание в любое время года.Всего по 4 квартиры на этажеВысота потолков 2,8 метра.Лоджия в каждой квартиреВсе жители комплекса будут избавлены от шума и грязи, т.к. все ремонтные работы будут уже завершеныОкрестности комплекса уже наполнены развитой инфраструктурой:в непосредственной близости расположено 5 общеобразовательных школ и 13 детских садов.Транспортная доступность также на высоком уровнеядом с домом есть автобусные и трамвайные остановки, которые позволяют добраться до центра города всего за 20-30 минут и возможность добраться на трамвае без городских пробок в любое время.Безопасность и комфортность жителей являются приоритетом комплекса, поэтому все необходимые меры будут предприняты для создания благоприятной среды для всех возрастных групп.ЖК Весна предлагает семейные квартиры от одно- двух и трехкомнатных, где все условия созданы для комфортной жизни.Комплекс из 5 домов по 10 этажей, а внутренний двор оборудован детскими площадками. Также планируется строительство детского сада на территории комплекса.Для удобства жителей предусмотрена большая открытая парковка на 350 машиномест.Данный комплекс обслуживает собственная управляющая компания с многолетним опытом.Эскроу-счета в Сбербанке гарантируют 100 процентную безопасность ваших финансовых средствПокупка квартиры в доме доступна по льготной ипотечной программе:семейная ипотекаIТ ипотекаДанный жилой комплекс отличная альтернатива вторичной недвижимости по льготным ипотечным программам на новостройки Приобретая недвижимость через Федеральное Агентство Недвижимости Самолёт Плюс Вы получаете:юридическое сопровождение;помощь в оформлении ипотеки на выгодных условиях;помощь в оформлении документов;Качественный клиентский сервис.Рады будем ответить на все ваши вопросы с 9:00 до 21:00.Гарантия юридической чистоты сделки от компании, которая работает на рынке недвижимости в городе Кемерово с 2010 года macro-1286802

Читать полностью
    Позвонить Написать
    8 099 000 Р100 100 $ или 86 730
    Агент
    +7 (913) 120-48-54
    Начать чат с агентом
    Похожие предложения в Кемерово
    3-к кв. Кемеровская область, Кемерово Лесная Поляна жилрайон, ... - Фото 1
    3-к кв. Кемеровская область, Кемерово Лесная Поляна жилрайон, ... - Фото 2
    3-комнатная квартира, общая площадь 71м²

    Продаётся 3-комнатная квартира в строящемся доме (д.23, корпус 4), срок сдачи: III-кв. 2027, общей площадью 71 кв.м., на 1 этаже. Уникальный проект жилого комплекса Солнечный бульварасполагается на территории нового микрорайона жилого района Лесная...
    • 71 м²
    • 3-ком
    • 1/7 эт.
    8 165 000 Р
    Агент
    +7 (800) Показать номер
    Посмотреть контакты
    3-к кв. Кемеровская область, Кемерово Лесная Поляна жилрайон, ... - Фото 1
    3-к кв. Кемеровская область, Кемерово Лесная Поляна жилрайон, ... - Фото 2
    3-комнатная квартира, общая площадь 71м²

    Продаётся 3-комнатная квартира в строящемся доме (д.23, корпус 4), срок сдачи: III-кв. 2027, общей площадью 71 кв.м., на 1 этаже. Уникальный проект жилого комплекса Солнечный бульварасполагается на территории нового микрорайона жилого района Лесная...
    • 71 м²
    • 3-ком
    • 1/7 эт.
    8 165 000 Р
    Агент
    +7 (800) Показать номер
    Посмотреть контакты
    3-к кв. Кемеровская область, Кемерово Южный мкр, 10-й мкр, Весна жилой ... - Фото 1
    3-к кв. Кемеровская область, Кемерово Южный мкр, 10-й мкр, Весна жилой ... - Фото 2
    3-комнатная квартира, общая площадь 60м², жилая 33м², кухня 15м²

    Квартира с отделкой под ключ в новостройке — комфорт и готовность к заселению Основная информация— Передача ключей: декабрь 2025 года— Этаж: комфортный 5-й— Отделка под ключ — можно сразу заехать, без ремонта, грязи и лишних хлопот— Просторная кухня—...
    • 60 м²
    • 3-ком
    • 5/10 эт.
    8 200 000 Р
    Агент
    +7 (939) Показать номер
    Посмотреть контакты
    2-к кв. Кемеровская область, Кемерово Южный мкр, 10-й мкр, Весна жилой ... - Фото 1
    2-к кв. Кемеровская область, Кемерово Южный мкр, 10-й мкр, Весна жилой ... - Фото 2
    2-комнатная квартира, общая площадь 62м²

    АКЦИИ МЕСЯЦА НА ПОКУПКУ КВАРТИР С ОТДЕЛКОЙ В ЖК СЕМЕЙНЫЙ КВАРТАЛ ВЕСНА : РАССРОЧКА БЕЗ ПРОЦЕНТОВ, СКИДКА ДО 810 219 РУБ. И СТАВКА ПО ИПОТЕКЕ 6 ДЛЯ ВСЕХ КВАРТИРЫ С ГОТОВОЙ НА 100 ОТДЕЛКОЙ ПОД КЛЮЧ ПРEИMУЩЕСTВА: Завершение строительства и получение...
    • 62 м²
    • 2-ком
    • 6/10 эт.
    • панельный
    8 142 960 Р
    Агент
    +7 (936) Показать номер
    Посмотреть контакты
    2-к кв. Кемеровская область, Кемерово просп. Притомский, 30А (58.5 м) - Фото 1
    2-к кв. Кемеровская область, Кемерово просп. Притомский, 30А (58.5 м) - Фото 2
    2-комнатная квартира, общая площадь 58м², жилая 32м², кухня 12м²

    Продается комфортная квартира в жилом комплексе Кемерово-Сити , представляет собой уникальное предложение на рынке недвижимости. Комплекс расположен в центре города с прекрасным видом на реку.Микрорайон размещается рядом со спортивными объектами, такими...
    • 58 м²
    • 2-ком
    • 12/17 эт.
    • панельный
    8 190 000 Р
    Агент
    +7 (980) Показать номер
    Посмотреть контакты

    Не нашли подходящего объявления?

    Оставьте заявку, и наши риэлторы подберут квартиру в новостройке в районе Кемерово

    (0)