3 690 000 Р 45 560 $ или 39 010

Информация о квартире

45 м2
Площадь
5 м2
Кухня
2
Комнаты
2
Этаж
5
Этажность

Дополнительная информация

Тип дома
кирпичный
Развернуть
Агент
+7 (939) 038-89-97
Начать чат с агентом

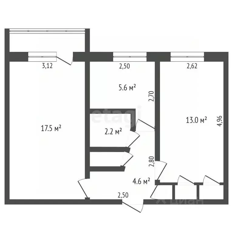
2-к кв. Кемеровская область, Кемерово Пролетарская ул., 19 (45.2 м)

Предлагаем вашему вниманию уникальную возможность приобрести 2-комнатную квартиру в Заводском районе Общая площадь квартиры составляет 45,2 кв/м, а уютная кухня площадью 5,6 кв/м станет идеальным местом для кулинарных экспериментов и семейных ужинов. Эта квартира расположена в районе с отличной транспортной доступностью, что обеспечит вам легкий доступ ко всем уголкам города. В шаговой доступности находятся магазины, общеобразовательная школа 54, гимназия 17 и два детских сада, что делает это место идеальным для семей с детьми. Квартира очень теплая и светлая, а раздельный санузел добавляет удобства в повседневной жизни. Несмотря на то, что квартира требует ремонта, это дает вам уникальную возможность реализовать свои дизайнерские идеи и создать интерьер своей мечты, который будет отражать вашу индивидуальность и стиль жизни. Развитая инфраструктура района включает в себя все необходимое для комфортной жизни: магазины, аптеки и другие услуги. Во дворе вы найдете современную детскую площадку, а расширенная тротуарная зона обеспечит дополнительные парковочные места для вашего автомобиля. Не упустите шанс стать владельцем этой замечательной квартиры в Заводском районе Мы предлагаем помощь в подборе и оформлении ипотеки, включая возможность без первоначального взноса и использование материнского капитала. Звоните прямо сейчас и запишитесь на просмотр Ваш новый дом ждет вас Код пользователя: 92755Номер в базе: 6435518

Читать полностью

    Для того, чтобы купить двухкомнатную квартиру по адресу: Кемерово, Заводский, ул. Пролетарская, 19, позвоните по телефону +7 (939) 038-89-97. Торопитесь! Объявление №30089378369 о продаже двухкомнатной квартиры опубликовано Вчера.

    Позвонить Написать
    3 690 000 Р45 560 $ или 39 010
    Агент
    +7 (939) 038-89-97
    Начать чат с агентом
    Похожие предложения
    Студия Кемеровская область, Кемерово Пролетарская ул., 26 (40.0 м) - Фото 1
    Студия Кемеровская область, Кемерово Пролетарская ул., 26 (40.0 м) - Фото 2
    студия, общая площадь 40м², жилая 25м², кухня 5м²

    Уютная светлая 1ком площадью 40 кв. м на 4 этаже 5-этажного кирпичного дома. Просторная жилая зона площадью 25 кв. м и кухня - ниша 5 кв.м делают эту квартиру идеальным вариантом для комфортного проживания. Высокие потолки 3 метра добавляют ощущение простора...
    • 40 м²
    • студия-ком
    • 4/5 эт.
    • кирпичный
    3 700 000 Р
    Агент
    +7 (913) Показать номер
    Посмотреть контакты
    Студия Кемеровская область, Кемерово Пролетарская ул., 36А (21.6 м) - Фото 1
    Студия Кемеровская область, Кемерово Пролетарская ул., 36А (21.6 м) - Фото 2
    студия, общая площадь 21м², кухня 5м²

    Продам отличную студию, расположенную на 8-ом этаже 17-ти этажного дома, общей площадью 21.6 квадратных метра в Заводском районе. Дом сдан в 2024 году. В квартире сделан отличный евроремонт. На полу застелен качественный ламинат, создающий ощущение тепла...
    • 21 м²
    • студия-ком
    • 8/17 эт.
    3 750 000 Р
    Агент
    +7 (939) Показать номер
    Посмотреть контакты
    1-к кв. Кемеровская область, Кемерово Пролетарская ул., 29/3 (32.5 м) - Фото 1
    1-к кв. Кемеровская область, Кемерово Пролетарская ул., 29/3 (32.5 м) - Фото 2
    1-комнатная квартира, общая площадь 32м², кухня 7м²

    Продается отличная 1-комнатная квартира в ЖК Кузнецкий В квартире установлены пластиковые стеклопакеты, качественная входная дверь и межкомнатные двери.Освобождена, чистая продажа, КЛЮЧИ, показ в удобное для вас время.Развитая инфраструктура района....
    • 32 м²
    • 1-ком
    • 1/16 эт.
    3 750 000 Р
    Агент
    +7 (936) Показать номер
    Посмотреть контакты
    2-к кв. Кемеровская область, Кемерово Пролетарская ул., 11А (44.1 м) - Фото 1
    2-к кв. Кемеровская область, Кемерово Пролетарская ул., 11А (44.1 м) - Фото 2
    2-комнатная квартира, общая площадь 44м², жилая 30м², кухня 6м²

    Код объекта: 1802825. Продается уютная двухкомнатная квартира на высоком первом этаже в тихом дворе Заводского районаПредлагаем вашему вниманию прекрасный вариант для жизни в спокойном и обустроенном районе. Это двухкомнатная квартира в добротном кирпичном...
    • 44 м²
    • 2-ком
    • 1/5 эт.
    • кирпичный
    3 800 000 Р
    Агент
    +7 (939) Показать номер
    Посмотреть контакты
    Студия Кемеровская область, Кемерово Пролетарская ул., 29/1 (25.0 м) - Фото 1
    Студия Кемеровская область, Кемерово Пролетарская ул., 29/1 (25.0 м) - Фото 2
    студия, общая площадь 25м², кухня 10м²

    Продается светлая и просторная студия площадью 25 кв. м. с современным ремонтом. Отличное расположение: в шаговой доступности магазины, транспортные остановки, 2 детских сада и школа.Хороший ремонт, санузел с душевой кабиной, высокие потолки и большие...
    • 25 м²
    • студия-ком
    • 13/16 эт.
    • панельный
    3 600 000 Р
    Агент
    +7 (981) Показать номер
    Посмотреть контакты

    Не нашли подходящего объявления?

    Оставьте заявку, и наши риэлторы подберут квартиру в районе Кемерово

    (0)