3 600 000 Р 44 370 $ или 37 860

Информация о квартире

34 м2
Площадь
8 м2
Кухня
1
Комната
6
Этаж
10
Этажность

Дополнительная информация

Тип дома
панельный
Развернуть
Агент
+7 (913) 310-66-47
Начать чат с агентом

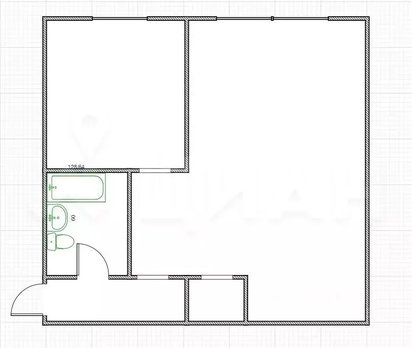
1-к кв. Кемеровская область, Кемерово Октябрьский просп., 36А (34.1 м)

ПРОДАЕТСЯ УЮТНАЯ ОДНОКОМНАТНАЯ КВАРТИРА Предлагаем вашему вниманию светлую и просторную однокомнатную квартиру с улучшенной планировкой 34,1 м, на 6-м этаже 10-ти этажного дома * Просторная кухня площадью 8,5 м с выходом на балкон станет отличным местом для семейных ужинов и встреч с друзьями.* Натяжные потолки придают квартире современный вид и легкость ухода.* Большая просторная комната с выходом на второй балкон..* Санузел раздельный, облицован плиткой, обеспечивающий комфорт и удобство.* Современный новый лифт, чистый и ухоженный подъезд создадут приятное впечатление с первого взгляда.* Практичное решение карман на две квартиры, обеспечивает дополнительную приватность и отсутствие посторонних шумов.Для молодых семей и родителей важно отметить близость образовательных учреждений:Средняя школа 35 всего в нескольких минутах ходьбы,Три детских сада поблизости обеспечат вашим детям лучшее начало жизненного пути.Транспортная доступность района также заслуживает внимания: остановки общественного транспорта расположены в 10 минутах ходьбы.Рядом торгового центра Спутник , где можно приобрести всё необходимое для комфортной жизни.Выбирайте качество, выбирайте комфорт, выбирайте нашу квартиру Код пользователя: 51778Номер в базе:

Читать полностью

    Для того, чтобы купить однокомнатную квартиру по адресу: Кемерово, Центральный, Октябрьский пр-кт., 36А, позвоните по телефону +7 (913) 310-66-47. Торопитесь! Объявление №30091651298 о продаже однокомнатной квартиры опубликовано Вчера.

    Позвонить Написать
    3 600 000 Р44 370 $ или 37 860
    Агент
    +7 (913) 310-66-47
    Начать чат с агентом
    Похожие предложения
    1-к кв. Кемеровская область, Кемерово Октябрьский просп., 47 (30.0 м) - Фото 1
    1-к кв. Кемеровская область, Кемерово Октябрьский просп., 47 (30.0 м) - Фото 2
    1-комнатная квартира, общая площадь 30м², кухня 9м²

    Предлагаю 1 комнатную квартиру проспект Октябрьский 47. В квартире установлены стеклопакеты, установлены новые радиаторы отопления, произведен ремонт Высокий цоколь. Дом расположен во дворе, что является преимуществом. В шаговой доступности Лапландия,...
    • 30 м²
    • 1-ком
    • 1/9 эт.
    • панельный
    3 700 000 Р
    Агент
    +7 (918) Показать номер
    Посмотреть контакты
    1-к кв. Кемеровская область, Кемерово Октябрьский просп., 61а (34.0 м) - Фото 1
    1-к кв. Кемеровская область, Кемерово Октябрьский просп., 61а (34.0 м) - Фото 2
    1-комнатная квартира, общая площадь 34м², жилая 18м², кухня 9м²

    Предлагаю к покупке евродвушку с выполненым капитальным ремонтом для себя (установлены стеклопакеты, радиаторы, залиты полы, выровнены стены, потолки, заменена проводка по всей квартире, установлены новые трубы, современная сантехника, выполнена кухонная...
    • 34 м²
    • 1-ком
    • 1/9 эт.
    • панельный
    3 650 000 Р
    Агент
    +7 (989) Показать номер
    Посмотреть контакты
    2-к кв. Кемеровская область, Кемерово ул. Калинина, 5 (46.1 м) - Фото 1
    2-к кв. Кемеровская область, Кемерово ул. Калинина, 5 (46.1 м) - Фото 2
    2-комнатная квартира, общая площадь 46м², кухня 5м²

    Продаётся уютная двухкомнатная квартира смежно-изолированной планировки типа арка , общей площадью 46.1 м, расположенная на втором этаже дома. Заменены коммуникации водоснабжения, окна и полы дерево. Необходим косметический ремонт. Пространство идеально...
    • 46 м²
    • 2-ком
    • 2/5 эт.
    • панельный
    3 640 000 Р
    Агент
    +7 (918) Показать номер
    Посмотреть контакты
    2-к кв. Кемеровская область, Кемерово Кузнецкий просп., 52 (43.7 м) - Фото 1
    2-к кв. Кемеровская область, Кемерово Кузнецкий просп., 52 (43.7 м) - Фото 2
    2-комнатная квартира, общая площадь 43м², жилая 27м², кухня 6м²

    Продается 2-х комнатная квартира в кирпичном доме, Центральный район города.В шаговой доступности от дома есть все необходимое: остановки общественного транспорта, различные магазины и торговые центы, банки, поликлиники, детские сады и школы.Квартира...
    • 43 м²
    • 2-ком
    • 2/5 эт.
    • кирпичный
    3 500 000 Р
    Агент
    +7 (983) Показать номер
    Посмотреть контакты
    2-к кв. Кемеровская область, Кемерово ул. Дзержинского, 16А (45.0 м) - Фото 1
    2-к кв. Кемеровская область, Кемерово ул. Дзержинского, 16А (45.0 м) - Фото 2
    2-комнатная квартира, общая площадь 45м², кухня 7м²

    Для любителей старого центра Двухкомнатная квартира 45 кв.м., изолированная. в хорошем состоянии. Сделан свежий косметический ремонт. Дом кирпичный (старый фонд - реконструированное КГТ) четырехэтажный, теплый. Вокруг развитая инфраструктура: детские...
    • 45 м²
    • 2-ком
    • 2/4 эт.
    • кирпичный
    3 700 000 Р
    Агент
    +7 (989) Показать номер
    Посмотреть контакты

    Не нашли подходящего объявления?

    Оставьте заявку, и наши риэлторы подберут квартиру в районе Кемерово

    (0)