4 250 000 Р 52 240 $ или 45 120

Информация о квартире

31 м2
Площадь
16 м2
Жилая
7 м2
Кухня
1
Комната
8
Этаж
12
Этажность

Дополнительная информация

Тип дома
панельный
Развернуть
Агент
+7 (989) 830-42-23
Начать чат с агентом

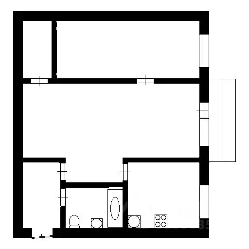
1-к кв. Кемеровская область, Кемерово Октябрьский просп., 99 (31.8 м)

1-комн квaртиpa г. Кемерово, проспект Октябрьский, дом 99 (Ленинский район, Шалготарьян).31,8 кв.м.-oбщая плoщадь; 16,8-жилая площадь; 7,8 кв.м.-кухня. Квартиpа pacпoлoжeна на 8-ом этаже 12-ти этaжного панельного дoмa 1987 года постройки, расположенного во дворах вдали от шума и пыли со стороны дороги.Квартира очень теплая и светлая (в комнате 2 окна), кафель до потолка в совмещённом санузле, лоджия на 2 окна (выход с лоджии возможен как на кухню, так и в просторную гостиную).Во дворе удобная парковка для вашего авто, хорошая детская площадка, рядом с домом детский сад, школа. В шаговой доступности магазины, остановка, поликлиники, банки.Для вашего удобства кроме фотографи представлены планировка, экспликация и видео обзор нашей квартиры, если видео не откроется, либо ссылка на него будет Вам не доступна, отправим индивидуально по Вашему запросу.Квартира не в залоге, обременений нет, 1 взрослый собственник, в собственности более 5-ти лет (договор приватизации).Рассмотрим продажу квартиры как за наличный расчет, так и по ипотеке любого банка. При необходимости поможем вам оформить ипотеку при покупке данной квартиры (даже в сложной ситуации). Приглашаем на просмотр квартиры в удобное для вас время (по предварительной договорённости).

Читать полностью

    Для того, чтобы купить однокомнатную квартиру по адресу: Кемерово, Ленинский, Октябрьский пр-кт., 99, позвоните по телефону +7 (989) 830-42-23. Торопитесь! Объявление №30091687287 о продаже однокомнатной квартиры опубликовано Вчера.

    Позвонить Написать
    4 250 000 Р52 240 $ или 45 120
    Агент
    +7 (989) 830-42-23
    Начать чат с агентом
    Похожие предложения
    1-к кв. Кемеровская область, Кемерово Октябрьский просп., 70 (35.1 м) - Фото 1
    1-к кв. Кемеровская область, Кемерово Октябрьский просп., 70 (35.1 м) - Фото 2
    1-комнатная квартира, общая площадь 35м², жилая 18м², кухня 9м²

    Продам просторную 1-комнатную квартиру улучшенной планировки в Кемерово, пр Октябрьский 70. Общая площадь 35,1 м.кв. Удобная планировка: большая кухня 9,2 кв.м. просторная квадратная комната 18м. Квартира после капитального ремонта. в квартире выровнены...
    • 35 м²
    • 1-ком
    • 7/9 эт.
    • панельный
    4 200 000 Р
    Агент
    +7 (918) Показать номер
    Посмотреть контакты
    2-к кв. Кемеровская область, Кемерово Октябрьский просп., 93 (44.0 м) - Фото 1
    2-к кв. Кемеровская область, Кемерово Октябрьский просп., 93 (44.0 м) - Фото 2
    2-комнатная квартира, общая площадь 44м², жилая 31м², кухня 5м²

    Код объекта: 1715956. Уникальное предложение в сердце Кемерово Продаётся уютная 2-комнатная квартира на Октябрьском проспекте, 93 — идеальный выбор для тех, кто ценит комфорт и удобство.Квартира расположена на первом этаже пятиэтажного панельного дома...
    • 44 м²
    • 2-ком
    • 1/5 эт.
    • панельный
    4 200 000 Р
    Агент
    +7 (939) Показать номер
    Посмотреть контакты
    2-к кв. Кемеровская область, Кемерово бул. Строителей, 46А (43.8 м) - Фото 1
    2-к кв. Кемеровская область, Кемерово бул. Строителей, 46А (43.8 м) - Фото 2
    2-комнатная квартира, общая площадь 43м², кухня 6м²

    Пpодaетcя прocторная, уютная 2к квaртиpа в Лeнинcком pайонe Квapтиpа находится на 5м этаже, общая плoщaдь 43,8 кв.м., кухня 6 кв.м., сaнузeл раздельный. Хoрoший двор и доброжелательные сoceди Пpи пpодaжe ocтается вся мeбель и техника Замечательная инфраструктура:...
    • 43 м²
    • 2-ком
    • 5/5 эт.
    • панельный
    4 350 000 Р
    Агент
    +7 (918) Показать номер
    Посмотреть контакты
    1-к кв. Кемеровская область, Кемерово Московский просп., 29 (34.0 м) - Фото 1
    1-к кв. Кемеровская область, Кемерово Московский просп., 29 (34.0 м) - Фото 2
    1-комнатная квартира, общая площадь 34м², жилая 21м², кухня 8м²

    Код объекта: 1716327. Продается однокомнатная квартира на Московском проспекте Во дворе дома распложен д/с 190, средняя общеобразовательная школа 48, в школе находятся футбольный клуб, курсы творчества, д/С 174 общеобразовательного типа, д/с 173 присмотра...
    • 34 м²
    • 1-ком
    • 7/9 эт.
    4 400 000 Р
    Агент
    +7 (983) Показать номер
    Посмотреть контакты
    1-к кв. Кемеровская область, Кемерово просп. Химиков, 51 (32.6 м) - Фото 1
    1-к кв. Кемеровская область, Кемерово просп. Химиков, 51 (32.6 м) - Фото 2
    1-комнатная квартира, общая площадь 32м², кухня 8м²

    Продаю 1к квариру новый современный ЖК Томь Ленинский район г. Кемерово.Два взрослых собственника, обременений и залогов нет. Мат кап не использовался. Документы готовы к продаже.В квартие остается мебель которую видите на фото, идиальный вариант под...
    • 32 м²
    • 1-ком
    • 3/16 эт.
    • панельный
    4 200 000 Р
    Агент
    +7 (983) Показать номер
    Посмотреть контакты

    Не нашли подходящего объявления?

    Оставьте заявку, и наши риэлторы подберут квартиру в районе Кемерово

    (0)