2 600 000 Р 32 120 $ или 27 720

Информация о квартире

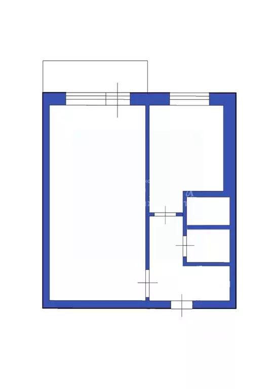
30 м2
Площадь
18 м2
Жилая
6 м2
Кухня
1
Комната
3
Этаж
5
Этажность
Развернуть
Агент
+7 (983) 219-68-92
Начать чат с агентом

1-комнатная квартира: Кемерово, улица Халтурина, 45 (30.4 м)

Продам уютную 1 - комнатную квартиру в Кировском районе. Этаж 3/5. Общая площадь 30,4 кв.м., комната 17,4 кв.м., кухня 5 кв.м. Квартира в хорошем состоянии. Установлены пластиковые окна. Балкон застеклен (современное остекление). Пол - бетонная стяжка. В комнате на полу линолеум, в прихожей, на кухне и в сан узле кафельная плитка. Сан узел раздельный. В прихожей установлен встроенный шкаф-купе. В шаговой доступности школа №15, детский садик Кораблик и №181, спортивные площадки, магазины, остановки общественного транспорта. 1 взрослый собственник. Продажа по 1 ДКП. Квартира без долгов и обременений.

Читать полностью

    Для того, чтобы купить однокомнатную квартиру по адресу: Кемерово, ул. Халтурина, 45, позвоните по телефону +7 (983) 219-68-92. Торопитесь! Объявление №30091743614 о продаже однокомнатной квартиры опубликовано 12 ноября 2025.

    Позвонить Написать
    2 600 000 Р32 120 $ или 27 720
    Агент
    +7 (983) 219-68-92
    Начать чат с агентом
    Похожие предложения
    1-к кв. Кемеровская область, Кемерово ул. Халтурина, 45 (30.4 м) - Фото 1
    1-к кв. Кемеровская область, Кемерово ул. Халтурина, 45 (30.4 м) - Фото 2
    1-комнатная квартира, общая площадь 30м², жилая 18м², кухня 6м²

    Продам уютную 1 - комнатную квартиру в Кировском районе. Этаж 3/5. Общая площадь 30,4 кв.м., комната 17,4 кв.м., кухня 5 кв.м. Квартира в хорошем состоянии. Установлены пластиковые окна. Балкон застеклен (современное остекление). Пол - бетонная стяжка....
    • 30 м²
    • 1-ком
    • 3/5 эт.
    • панельный
    2 600 000 Р
    Агент
    +7 (918) Показать номер
    Посмотреть контакты
    1-комнатная квартира: Кемерово, улица Халтурина, 33 (31 м) - Фото 1
    1-комнатная квартира: Кемерово, улица Халтурина, 33 (31 м) - Фото 2
    1-комнатная квартира, общая площадь 31м², жилая 17м², кухня 7м²

    Код объекта: 1923580.ХОТИТЕ КУПИТЬ КВАРТИРУ УЖЕ ЗАВТРА? Эта — Ваша Продаётся 1-комнатная квартира в Кемерово, ул. Халтурина, 33 Всего Идеальный вариант для быстрого заселения Квартира в кирпичном доме, с хорошей локацией.ВСЁ ЧИСТО, ключи — Вам Заезжайте...
    • 31 м²
    • 1-ком
    • 4/5 эт.
    2 600 000 Р
    Агент
    +7 (905) Показать номер
    Посмотреть контакты
    1-к кв. Кемеровская область, Кемерово ул. Александрова, 13А (29.8 м) - Фото 1
    1-к кв. Кемеровская область, Кемерово ул. Александрова, 13А (29.8 м) - Фото 2
    1-комнатная квартира, общая площадь 29м², жилая 18м², кухня 6м²

    Код объекта: 1918601.Предлагаем к продаже однокомнатную квартиру в Кировском районе Квартира находится на пятом этаже. Входная железная дверь, в оконных промах установлены пластиковые стеклопакеты. Балкон не застеклен. Нa полу постелен линолеум, потолок...
    • 29 м²
    • 1-ком
    • 5/5 эт.
    • кирпичный
    2 600 000 Р
    Агент
    +7 (983) Показать номер
    Посмотреть контакты
    1-к кв. Кемеровская область, Кемерово ш. Промышленновское, 54 (32.8 м) - Фото 1
    1-к кв. Кемеровская область, Кемерово ш. Промышленновское, 54 (32.8 м) - Фото 2
    1-комнатная квартира, общая площадь 32м², жилая 20м², кухня 6м²

    Продаётся однокомнатная квартира в трёхэтажном кирпичном доме, расположенного по адресу улица Промышленновское шоссе, дом 54 (город Кемерово, посёлок шахты Промышленной). Квартира готова к проживанию, имеет косметический ремонт, окна пластиковые, есть...
    • 32 м²
    • 1-ком
    • 2/3 эт.
    • кирпичный
    2 650 000 Р
    Агент
    +7 (936) Показать номер
    Посмотреть контакты
    Студия Кемеровская область, Кемерово ул. Мичурина, 61 (22.4 м) - Фото 1
    Студия Кемеровская область, Кемерово ул. Мичурина, 61 (22.4 м) - Фото 2
    студия, общая площадь 22м², кухня 5м²

    Квартира площадью 23,5 кв.м. расположена в Заводском районе на улице Мичурина, д. 61. Объект отличается удобной планировкой: при входе выделена компактная прихожая, что позволяет рационально использовать пространство.Совмещенный санузел выполнен с учетом...
    • 22 м²
    • студия-ком
    • 6/9 эт.
    • панельный
    2 570 000 Р
    Агент
    +7 (939) Показать номер
    Посмотреть контакты

    Не нашли подходящего объявления?

    Оставьте заявку, и наши риэлторы подберут квартиру в районе Кемерово

    (0)