13 000 000 Р 160 700 $ или 139 200

Информация о таунхаусе

188 м2
Площадь
2
Этажность
2 cоток
Участок
Развернуть
Агент
+7 (939) 038-20-46
Начать чат с агентом

Таунхаус в Кемеровская область, Кемеровский район, с. Елыкаево (188 ...

Код объекта: 1336184. Продаётся двухэтажный кирпичный дом в селе Елыкаево, расположенный в 22 км от города. Таунхаус расположен в живописном месте на территории бывшего санатория. Дом на 5 квартир. Охраняемая территория обрабатывается от клеща. Общая площадь дома — 188 кв. м, жилая площадь — 120 кв. м. В доме шесть комнат площадью по 20 кв. м каждая и кухня площадью 8 кв. м. Дом построен в 2015 году и имеет статус индивидуального жилищного строительства. Подходит для круглогодичного проживания. Материал кровли — металлочерепица. Коммуникации участка включают электричество, водоснабжение и канализацию. Расположение дома позволяет насладиться спокойствием и уединением, при этом дом находится недалеко от города, что обеспечивает удобный доступ ко всей необходимой инфраструктуре. В 22 километрах от села находится город, до которого можно легко добраться на автомобиле или общественном транспорте. Участок площадью 2,3 сотки. Косметический ремонт позволит новым владельцам сразу заселиться и наслаждаться жизнью в своём доме. Есть один раздельный санузел и один совмещённый. Первый этаж с дорогим дизайнерским ремонтом, второй этаж подготовлен под реализацию творческих идей новых собственников. Не упустите свой шанс стать владельцем этого замечательного дома Позвоните нам прямо сейчас, чтобы узнать больше о данном объекте недвижимости и организовать просмотр. Мы гарантируем безопасную сделку и юридическую поддержку нашим Клиентам. Поможем одобрить ипотеку с сниженной ставкой.

Читать полностью

    Для того, чтобы купить квартирутаунхаус по адресу: Елыкаево, позвоните по телефону +7 (939) 038-20-46. Торопитесь! Объявление №50016204359 о продаже -1-комнатного таунхауса опубликовано 24 октября 2025.

    Позвонить Написать
    13 000 000 Р160 700 $ или 139 200
    Агент
    +7 (939) 038-20-46
    Начать чат с агентом
    Похожие предложения
    Таунхаус в Кемеровская область, Кемерово Лесная Поляна жилрайон, бул. ... - Фото 1
    Таунхаус в Кемеровская область, Кемерово Лесная Поляна жилрайон, бул. ... - Фото 2
    2 этажа, общая площадь 100м², участок 1 сотка

    Код объекта: 1822929. Продается просторный таунхаус с евроремонтом в экологичном районеГод постройки: 2019. Идеально подходит для круглогодичного проживания Общая информация: Общая площадь: 100 м Этажность: 2 этажа + подвал (20м) Участок: Благоустроенная...
    • 2 эт.
    • 100 м²
    • 1 сот.
    12 500 000 Р
    Агент
    +7 (939) Показать номер
    Посмотреть контакты
    Таунхаус в Кемеровская область, Кемерово Лесная Поляна жилрайон, ... - Фото 1
    Таунхаус в Кемеровская область, Кемерово Лесная Поляна жилрайон, ... - Фото 2
    2 этажа, общая площадь 116м², участок 1 сотка

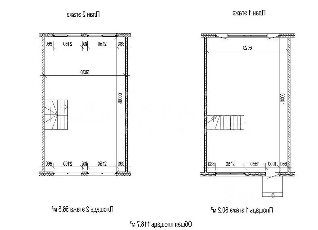
    Покупай сейчас - плати потом На данный объект доступна рассрочка на выгодных условияхПредставляем вашему вниманию уникальную возможность стать владельцем стильного таунхауса в живописном районе Лесная Поляна Дом площадью 116,7 м — идеальный выбор для...
    • 2 эт.
    • 116 м²
    • 1 сот.
    12 830 000 Р
    Агент
    +7 (985) Показать номер
    Посмотреть контакты
    Таунхаус в Кемеровская область, Кемерово Верхотомская ул. (138 м) - Фото 1
    Таунхаус в Кемеровская область, Кемерово Верхотомская ул. (138 м) - Фото 2
    1 этаж, общая площадь 138м², участок 10 соток

    Превосходный дом. Строился с душой и любовью. Очень теплый зимой и прохладный летом. Отопление по финской технологии. Банька тоже со своими плюшками. Пол с подогревом. Топится только дровами. Часа полтора -два и парная на 100 градусов. Бассейн нужно доделать....
    • 1 эт.
    • 138 м²
    • 10 сот.
    12 000 000 Р
    Агент
    +7 (939) Показать номер
    Посмотреть контакты
    Таунхаус в Кемеровская область, Кемерово Лесная Поляна жилрайон, бул. ... - Фото 1
    Таунхаус в Кемеровская область, Кемерово Лесная Поляна жилрайон, бул. ... - Фото 2
    2 этажа, общая площадь 117м², участок 2 сотки

    Код объекта: 1873458. В продаже таунхаус с видом нa ЛЕС По привлекательной стоимости РЕДКО появляются в продаже аналогичные тауны Вся необходимая инфраструктура рядом: пункты выдачи интернет заказов, безопасные детские площадки, детский сад, школа...
    • 2 эт.
    • 117 м²
    • 2 сот.
    12 500 000 Р
    Агент
    +7 (939) Показать номер
    Посмотреть контакты
    Таунхаус в Нижегородская область, Нижний Новгород с. Большая Ельня, ... - Фото 1
    Таунхаус в Нижегородская область, Нижний Новгород с. Большая Ельня, ... - Фото 2
    2 этажа, общая площадь 110м², участок 2 сотки

    Отличный таунхаус рядом с городомВ шаговой доступности магазины, аптеки, банкоматы, детские сады, школа. В доме никто не жил и не прописан. Сделан ремонт. Выложена плитка в санузлах, обои в спальнях и гостиной. Пол - кварцвинил. Своя парковка на 2 а/м....
    • 2 эт.
    • 110 м²
    • 2 сот.
    12 500 000 Р
    Агент
    +7 (931) Показать номер
    Посмотреть контакты

    Не нашли подходящего объявления?

    Оставьте заявку, и наши риэлторы подберут таунхаус в районе Елыкаево

    (0)