1 500 000 Р 18 430 $ или 16 000

Информация о коттедже

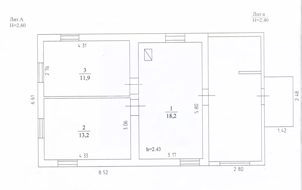
75 м2
Площадь
2
Этажность
10 cоток
Участок

Дополнительная информация

Дом продаётся вместе с участком
есть
Развернуть
Агент
+7 (983) 220-42-32
Начать чат с агентом

Дом в Кемеровская область, Кемеровский район, Химстроевец СНТ (75 м)

Код объекта: 1592982. Уютная дача вашей мечты ждет вас Продаётся ухоженный уголок природы в СНТ Химстроевец Предлагаем к продаже прекрасную дачу, где вы сможете насладиться тишиной, свежим воздухом и отдыхом от городской суеты Расположение: СНТ Химстроевец . 24 км от города по Промышленновской трассеОсновные характеристики:• Дом: Кирпичный, двухэтажный, общей площадью 70 м, с печным отоплением, пластиковыми окнами -идеально подходящий для комфортного проживания. • 2 уютные комнаты для отдыха и сна. • Кухня для приготовления любимых блюд. • Небольшая уютная веранда, где приятно проводить время на свежем воздухе за чашечкой кофе.• Участок: 14 соток земли, полностью в собственности, с выполненным межеванием гарантия юридической чистоты сделки • На участке есть все посадки плодовых деревьев, кустарников и других многолетних культур и цветов - урожай яблок и ягод уже гарантирован • Гараж для вашего автомобиля или хранения инвентаря. • Парковка в ограде на два автомобиля забетонирована, есть навес. • Углярка/дровник с углем и дровами • Сарай с погребом может использоваться как мастерская и для хранения инвентаря. • Баня для полноценного отдыха и оздоровления. • 3 капитальные теплицы для выращивания собственных овощей и зелени. • Преимущества: • Ухоженная территория с плодородной почвой, где вы сможете воплотить свои садоводческие мечты. • Удобное расположение в СНТ Химстроевец и хорошая транспортная доступность. • Подходит под ипотеку упростите процесс покупки Почему стоит выбрать именно эту дачу?Это идеальное место для летнего отдыха, выходных в кругу семьи и друзей, а также для тех, кто мечтает о собственном огороде и свежих продуктах. Здесь вы найдете все необходимое для комфортной жизни и отдыха на природе Не упустите возможность приобрести уютную дачу вашей мечты Звоните, договоримся о показе

Читать полностью

    Для того, чтобы купить 2-этажный коттедж по адресу: СНТ Химстроевец, позвоните по телефону +7 (983) 220-42-32. Торопитесь! Объявление №50016380887 о продаже двухэтажного коттеджа опубликовано Вчера.

    Позвонить Написать
    1 500 000 Р18 430 $ или 16 000
    Агент
    +7 (983) 220-42-32
    Начать чат с агентом
    Похожие предложения в Кемеровском районе
    Дом в Кемеровская область, Кемеровский район, пос. Кузбасский ул. ... - Фото 1
    Дом в Кемеровская область, Кемеровский район, пос. Кузбасский ул. ... - Фото 2
    1 этаж, общая площадь 45м², участок 14 соток

    Прoдaм 3-ком.квартиру в доме на 2 хозяина в самом центре поселка Кузбасский Кемеровского района. Год постройки 1970. На улица уложен асфальт.Эта квартира подходит как для постоянного проживания, так и для летнего времяпровождения- для шикарной дачи....
    • 1 эт.
    • 45 м²
    • 14 сот.
    1 590 000 Р
    Агент
    +7 (913) Показать номер
    Посмотреть контакты
    Дом в Кемеровская область, Кемеровский район, д. Усть-Хмелевка ... - Фото 1
    Дом в Кемеровская область, Кемеровский район, д. Усть-Хмелевка ... - Фото 2
    1 этаж, общая площадь 43м², участок 44 сотки

    Код объекта: 1307100. Приезжайте смотреть наш дом, он находится в красивом, живописном месте Ищете идеальный дом для жизни? Тогда это предложение точно для вас Продаётся одноэтажный деревянный дом площадью 43,3 кв. м. В доме две комнаты (по 12 кв.м.)...
    • 1 эт.
    • 43 м²
    • 44 сот.
    1 500 000 Р
    Агент
    +7 (983) Показать номер
    Посмотреть контакты
    Дом в Кемеровская область, Кемеровский район, Азотовец садовое дачное ... - Фото 1
    Дом в Кемеровская область, Кемеровский район, Азотовец садовое дачное ... - Фото 2
    2 этажа, общая площадь 47м², участок 7 соток

    Покупай сейчас - плати потом На данный объект доступна рассрочка на выгодных условияхПродам дачу в СНТ Азотовец, с круглогодичным проездом Дача расположена в тихом и уютном месте.Участок широкий, позволяет разместить и зону отдыха с бассейном, и также...
    • 2 эт.
    • 47 м²
    • 7 сот.
    1 500 000 Р
    Агент
    +7 (939) Показать номер
    Посмотреть контакты
    Дом в Кемеровская область, Кемеровский район, д. Александровка  (74 м) - Фото 1
    Дом в Кемеровская область, Кемеровский район, д. Александровка  (74 м) - Фото 2
    2 этажа, общая площадь 74м², участок 6 соток

    Продается дача снт Александровские родники , 11км от города . Дом 2этажа , земля в собственности 6соток , а по факту 9 соток. Участок с уклоном , на участке гараж , теплица , баня под одной крышей с домом , санузел в доме . В доме остаётся мебель , бытовая...
    • 2 эт.
    • 74 м²
    • 6 сот.
    1 499 000 Р
    Агент
    +7 (936) Показать номер
    Посмотреть контакты
    Дом в Кемеровская область, Кемеровский район, Железобетон СНТ  (30 м) - Фото 1
    Дом в Кемеровская область, Кемеровский район, Железобетон СНТ  (30 м) - Фото 2
    1 этаж, общая площадь 30м², участок 5 соток

    Продается отличный дом дом для круглогодичного проживания в Мазурово на дачном участке. Дом полностью пригоден для жилья , печь, все удобства для комфортной жизни на природе. Есть ухоженный огород, все посадки Рядом все посадки , есть хорошая баня,...
    • 1 эт.
    • 30 м²
    • 5 сот.
    1 500 000 Р
    Агент
    +7 (939) Показать номер
    Посмотреть контакты

    Не нашли подходящего объявления?

    Оставьте заявку, и наши риэлторы подберут купить дом в районе Кемеровского района

    (0)