3 200 000 Р 39 500 $ или 34 070

Информация о квартире

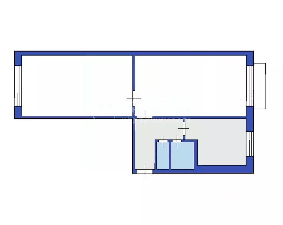
41 м2
Площадь
5 м2
Кухня
2
Комнаты
1
Этаж
4
Этажность

Дополнительная информация

Тип дома
кирпичный
Развернуть
Агент
+7 (985) 658-01-99
Начать чат с агентом

2-к кв. Кемеровская область, Ленинск-Кузнецкий ул. Зварыгина, 4 (41.3 ...

Продаётся светлая и уютная двухкомнатная квартира на первом этаже четырёхэтажного кирпичного дома. Общая площадь — 42 кв. м, кухня — 8 кв. м. Квартира полностью готова к проживанию: выполнен качественный ремонт с заменой электропроводки и сантехники, залиты ровные полы, уложен новый линолеум. Санузел совмещённый, с современной отделкой. Дом отличается хорошей теплоизоляцией — в квартире комфортно в любое время года. Окна выходят во двор, обеспечивая тишину и отсутствие уличного шума. Расположение объекта — одно из ключевых преимуществ. Вся необходимая инфраструктура находится в шаговой доступности (35 минут пешком): супермаркеты Ярче и Ермолинский , торговый центр Монро , аптеки, школа, детские сады. В двух минутах — остановка общественного транспорта с маршрутами в центр города и к ключевым транспортным узлам. Рядом также находится медицинское училище, что делает этот район привлекательным для студентов и преподавателей. Квартира идеально подойдёт как для постоянного проживания, так и для инвестиции — благодаря удачному расположению и готовности к заселению она не требует дополнительных вложений. Возможна как продажа, так и рассмотрение вариантов аренды. Показ в удобное время, юридическая проверка документов и сопровождение сделки любой сложности. Для получения дополнительной информации или организации просмотра свяжитесь любым удобным способом. Код пользователя: 83077Номер в базе: 6399250

Читать полностью

    Для того, чтобы купить двухкомнатную квартиру по адресу: Ленинск-Кузнецкий, ул. Зварыгина, 4, позвоните по телефону +7 (985) 658-01-99. Торопитесь! Объявление №30089660683 о продаже двухкомнатной квартиры опубликовано 29 октября 2025.

    Позвонить Написать
    3 200 000 Р39 500 $ или 34 070
    Агент
    +7 (985) 658-01-99
    Начать чат с агентом
    Похожие предложения
    2-к кв. Кемеровская область, Ленинск-Кузнецкий ул. Зварыгина, 4 (41.9 ... - Фото 1
    2-к кв. Кемеровская область, Ленинск-Кузнецкий ул. Зварыгина, 4 (41.9 ... - Фото 2
    2-комнатная квартира, общая площадь 41м², жилая 29м², кухня 7м²

    • S=41,9 м, кухня S=7,4 м. Квартира находится на втором этаже 4 этажного кирпичного дома в развитом районе города. 1963 год постройки. Светлая и теплая квартира. Косметический ремонт. Окна ПВХ (во двор), есть балкон. Полы - ламинат. Потолки - гипсокартон...
    • 41 м²
    • 2-ком
    • 2/4 эт.
    • кирпичный
    3 100 000 Р
    Агент
    +7 (989) Показать номер
    Посмотреть контакты
    2-к кв. Кемеровская область, Ленинск-Кузнецкий ул. Зварыгина, 8 (43.9 ... - Фото 1
    2-к кв. Кемеровская область, Ленинск-Кузнецкий ул. Зварыгина, 8 (43.9 ... - Фото 2
    2-комнатная квартира, общая площадь 43м², жилая 31м², кухня 5м²

    Код объекта: 1880623. Продается очень уютная и светлая квартира, готовая к заселению Предлагаем вашему вниманию прекрасный вариант для комфортной жизни. Это жилье, в котором осталось только внести свои вещи и начать наслаждаться новым бытом.Надежные коммуникации:...
    • 43 м²
    • 2-ком
    • 3/5 эт.
    • панельный
    3 200 000 Р
    Агент
    +7 (983) Показать номер
    Посмотреть контакты
    2-комнатная квартира: Ленинск-Кузнецкий, проспект Кирова, 79А (46.2 м) - Фото 1
    2-комнатная квартира: Ленинск-Кузнецкий, проспект Кирова, 79А (46.2 м) - Фото 2
    2-комнатная квартира, общая площадь 46м², жилая 33м², кухня 5м²

    • S=46,2 м, кухня - 5,6 м. Квартира, находится на 5 этаже 5 этажного панельного дома, 1965 года постройки. Квартира теплая и сухая, не угловая. Косметический ремонт. В коридоре выполнена современная отделка декоративной штукатуркой. Окна ПВХ (во двор),...
    • 46 м²
    • 2-ком
    • 5/5 эт.
    3 300 000 Р
    Агент
    +7 (983) Показать номер
    Посмотреть контакты
    2-к кв. Кемеровская область, Ленинск-Кузнецкий ул. Пушкина, 14 (48.0 ... - Фото 1
    2-к кв. Кемеровская область, Ленинск-Кузнецкий ул. Пушкина, 14 (48.0 ... - Фото 2
    2-комнатная квартира, общая площадь 48м², жилая 36м², кухня 7м²

    Предлагаем к покупке двухкомнатную квартиру общей площадью 48,4 кв.м, расположенную на пятом этаже кирпичного дома 14 по улице Пушкина. Территориально дом очень удобно расположен: через дорогу находится ДК им. Ярославского, гимназия 18, вокруг находятся...
    • 48 м²
    • 2-ком
    • 5/5 эт.
    • кирпичный
    3 200 000 Р
    Агент
    +7 (913) Показать номер
    Посмотреть контакты
    1-к кв. Кемеровская область, Ленинск-Кузнецкий Топкинская ул., 148/1 ... - Фото 1
    1-к кв. Кемеровская область, Ленинск-Кузнецкий Топкинская ул., 148/1 ... - Фото 2
    1-комнатная квартира, общая площадь 32м², жилая 15м², кухня 8м²

    Код объекта: 1550998. Ипотека 6 Ищете уютную квартиру под семейную ипотеку? Тогда это предложение для вас Продаётся светлая и тёплая 1к. квартир на ул. Топкинской в городе Ленинск-Кузнецкий. Она расположена на девятом этаже,что позволяет наслаждаться...
    • 32 м²
    • 1-ком
    • 9/9 эт.
    • панельный
    3 100 000 Р
    Агент
    +7 (983) Показать номер
    Посмотреть контакты

    Не нашли подходящего объявления?

    Оставьте заявку, и наши риэлторы подберут квартиру в районе Ленинска-Кузнецкого

    (0)