4 600 000 Р 56 700 $ или 48 370

Информация о квартире

63 м2
Площадь
38 м2
Жилая
8 м2
Кухня
3
Комнаты
5
Этаж
5
Этажность

Дополнительная информация

Тип дома
панельный
Развернуть
Агент
+7 (983) 220-42-32
Начать чат с агентом

3-к кв. Кемеровская область, Ленинск-Кузнецкий просп. Текстильщиков, ...

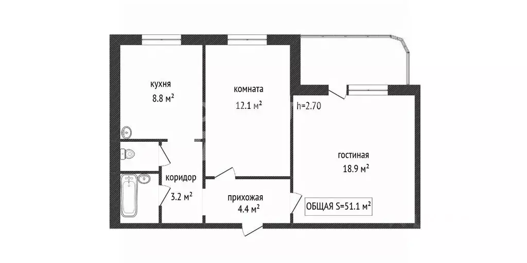
Код объекта: 1383079. Шанс приобрести квартиру, идеально подходящую для семейной жизни или комфортного проживания молодых пар Продаётся трёхкомнатная квартира на проспекте Текстильщиков. Это уникальное предложение, которое не стоит упускать.Квартира общей площадью 63.7 кв. м, располагается на пятом этаже. Компактная площадь, разделённая на три изолированные комнаты (17.7, 12.1 и 8.6 кв. м), идеально подходит для создания уютного пространства. Кухня площадью 8.2 кв. м станет отличным местом для подготовки семейных ужинов и встреч с друзьями.Комфортабельная планировка и хороший ремонт позволяют вам заехать и жить, не тратя время и средства на дополнительное благоустройство. Окна квартиры выходят как на улицу, так и во двор, что обеспечивает хорошую световую атмосферу и возможность наслаждаться свежим воздухом. В подарок новым хозяев остается мебель и техника.Вблизи находятся магазины, учебные заведения и другие элементы инфраструктуры, что делает жизнь здесь удобной и комфортной.Не упустите возможность стать обладателями этого замечательного жилья по выгодной цене Позвоните нам прямо сейчас, чтобы договориться о просмотре и получить больше информации. Мы гарантируем безопасную сделку и юридическую поддержку нашим Клиентам. Поможем одобрить ипотеку с сниженной ставкой.

Читать полностью

    Для того, чтобы купить трехкомнатную квартиру по адресу: Ленинск-Кузнецкий, Текстильщиков пр-кт., 1/1, позвоните по телефону +7 (983) 220-42-32. Торопитесь! Объявление №30089699829 о продаже трехкомнатной квартиры опубликовано 09 ноября 2025.

    Позвонить Написать
    4 600 000 Р56 700 $ или 48 370
    Агент
    +7 (983) 220-42-32
    Начать чат с агентом
    Похожие предложения
    3-к кв. Кемеровская область, Ленинск-Кузнецкий просп. Текстильщиков, ... - Фото 1
    3-к кв. Кемеровская область, Ленинск-Кузнецкий просп. Текстильщиков, ... - Фото 2
    3-комнатная квартира, общая площадь 65м², жилая 38м², кухня 8м²

    Арт.Продается трехкомнатная квартира в самом удобном районе города О квартире: общая площадь 65,3 кв.м.3 этажкомнаты изолированные, окна выходят на две сторонысанузел раздельныйокна пластиковыебалкон застеклен, выходит во дворне угловаяуютная, ухоженная...
    • 65 м²
    • 3-ком
    • 3/5 эт.
    • панельный
    4 700 000 Р
    Агент
    +7 (988) Показать номер
    Посмотреть контакты
    2-к кв. Кемеровская область, Ленинск-Кузнецкий ул. Спасстанция, 6 ... - Фото 1
    2-к кв. Кемеровская область, Ленинск-Кузнецкий ул. Спасстанция, 6 ... - Фото 2
    2-комнатная квартира, общая площадь 51м², жилая 31м², кухня 8м²

    Арт.Продается двухкомнатная квартира в хорошем состоянии с мебелью О квартире: общая площадь 51,1 кв.м.комнаты изолированныесанузел раздельный - кафельокна пластиковые, на полу в комнатах качественный линолеум, на кухне плитка, стены и потолки ровныезастекленный...
    • 51 м²
    • 2-ком
    • 3/5 эт.
    • панельный
    4 500 000 Р
    Агент
    +7 (988) Показать номер
    Посмотреть контакты
    2-к кв. Кемеровская область, Ленинск-Кузнецкий ул. Белинского, 5 (69.4 ... - Фото 1
    2-к кв. Кемеровская область, Ленинск-Кузнецкий ул. Белинского, 5 (69.4 ... - Фото 2
    2-комнатная квартира, общая площадь 69м², жилая 45м², кухня 19м²

    • S=69,4 м, площадь кухни - 19 м, 3/4 этаж. Кирпичный дом. Квартира теплая и сухая. Хороший косметический ремонт. Окна ПВХ. Стены ровные. Полы - ламинат, на кухне - кафель. Потолки - натяжные. Электропроводка полностью заменена на медную. Установлены...
    • 69 м²
    • 2-ком
    • 3/4 эт.
    • кирпичный
    4 500 000 Р
    Агент
    +7 (989) Показать номер
    Посмотреть контакты
    3-к кв. Кемеровская область, Ленинск-Кузнецкий ул. Лесной городок, 17 ... - Фото 1
    3-к кв. Кемеровская область, Ленинск-Кузнецкий ул. Лесной городок, 17 ... - Фото 2
    3-комнатная квартира, общая площадь 64м², жилая 43м², кухня 8м²

    • Квартира находится в экологически чистом районе города, рядом с Парком здоровья в сосновом бору. S=64,6 м, кухня - 8,6 м. 1/2 этаж. Панельный дом, 1992 года постройки. Квартира теплая и сухая, комнаты изолированные. Косметический ремонт. Окна ПВХ (на...
    • 64 м²
    • 3-ком
    • 1/2 эт.
    • панельный
    4 500 000 Р
    Агент
    +7 (913) Показать номер
    Посмотреть контакты
    3-к кв. Кемеровская область, Ленинск-Кузнецкий просп. Ленина, 31 (59.0 ... - Фото 1
    3-к кв. Кемеровская область, Ленинск-Кузнецкий просп. Ленина, 31 (59.0 ... - Фото 2
    3-комнатная квартира, общая площадь 59м², жилая 40м², кухня 5м²

    Уютная трехкомнатная квартира готова принять новосёлов В квартире была сделана перепланировка для большего комфорта и удобства. Все документы имеются и подтверждены в гос. учреждениях. Основной ремонт был сделать во время перепланировки. Все деревянные...
    • 59 м²
    • 3-ком
    • 5/5 эт.
    • кирпичный
    4 600 000 Р
    Агент
    +7 (913) Показать номер
    Посмотреть контакты

    Не нашли подходящего объявления?

    Оставьте заявку, и наши риэлторы подберут квартиру в районе Ленинска-Кузнецкого

    (0)