5 400 000 Р 66 480 $ или 57 550

Информация о квартире

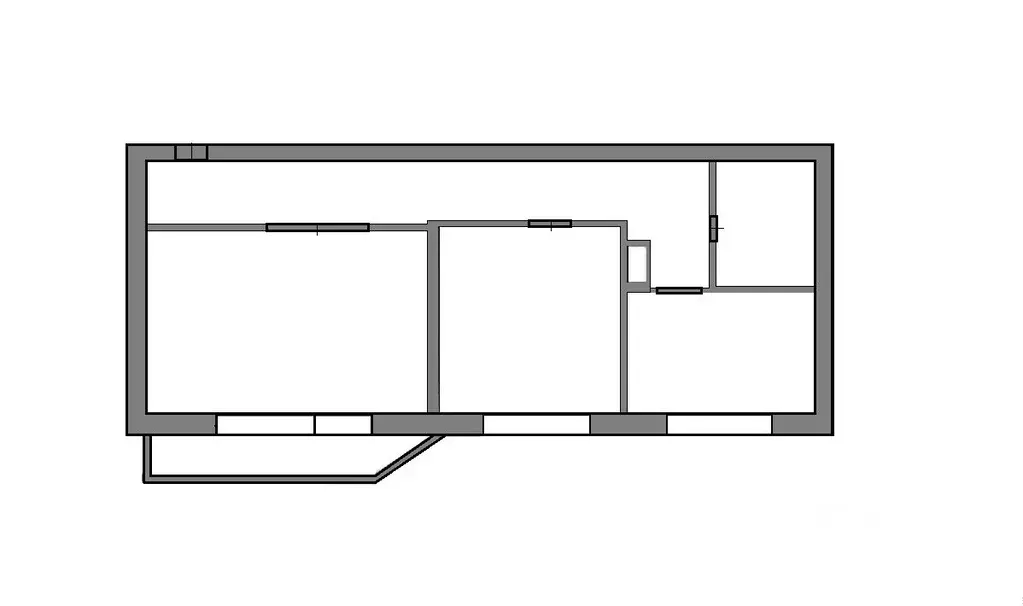
60 м2
Площадь
6 м2
Кухня
4
Комнаты
2
Этаж
5
Этажность

Дополнительная информация

Тип дома
панельный
Развернуть
Агент
+7 (939) 038-03-75
Начать чат с агентом

4-к кв. Кемеровская область, Междуреченск Октябрьская ул., 2 (60.8 м)

На продажу предлагается четырёхкомнатная квартира в Западном районе с общей площадью 60.8 кв.м. Она расположена на втором этаже панельного дома и является угловой, однако тепло в ней сохраняется прекрасно. Окна пластиковые, выходят на улицы Октябрьскую и Пушкина, есть застеклённый балкон. В двух спальнях уложен ламинат, в зале ДВП, на кухне кафель, а в остальных помещениях линолеум. Коридор и зал оформлены натяжными потолками. Санузел с ванной раздельный: в санузле кафельный пол и обои на стенах, а в ванной комнате кафель и на стенах, и на полу, установлена Душевая кабинка. За счёт ликвидации кладовой получилось увеличить кухонное пространство, а фартук в кухне выложен кафелем. Все коммуникации функционируют исправно. Расположение дома очень удобное: во дворе детский сад 38, в 20 метрах школа 25, в самом доме магазин Мария-Ра , спортивный комплекс Звёздный и почтовое отделение, спортивные и детские площадки. Всё необходимое для жизни находится в шаговой доступности. Управляет домом УК Мук . Компания Этажи предлагает преимущества от банков-партнёров, интересные варианты с пониженными ставками от 15 и полное юридическое сопровождение, включая гарантийный сертификат на покупку. Мы предоставляем качественное обслуживание и занимаем первое место среди партнёров и довольных клиентов. Код пользователя: 107795Номер в базе: 6497342

Читать полностью

    Для того, чтобы купить четырехкомнатную квартиру по адресу: Междуреченск, ул. Октябрьская, 2, позвоните по телефону +7 (939) 038-03-75. Торопитесь! Объявление №30091016717 о продаже четырехкомнатной квартиры опубликовано 29 октября 2025.

    Позвонить Написать
    5 400 000 Р66 480 $ или 57 550
    Агент
    +7 (939) 038-03-75
    Начать чат с агентом
    Похожие предложения
    4-к кв. Кемеровская область, Междуреченск Октябрьская ул., 2 (64.0 м) - Фото 1
    4-к кв. Кемеровская область, Междуреченск Октябрьская ул., 2 (64.0 м) - Фото 2
    4-комнатная квартира, общая площадь 64м², жилая 48м², кухня 7м²

    Код объекта: 1810859. Уникальное предложение на рынке недвижимости Междуреченска Квартира в самом сердце города по адресу Октябрьская улица, 2 — идеальный выбор для тех, кто ценит комфорт и доступность.Четырехкомнатная квартира общей площадью 64 кв....
    • 64 м²
    • 4-ком
    • 1/5 эт.
    • панельный
    5 500 000 Р
    Агент
    +7 (939) Показать номер
    Посмотреть контакты
    2-к кв. Кемеровская область, Междуреченск ул. Лазо, 10 (56.47 м) - Фото 1
    2-к кв. Кемеровская область, Междуреченск ул. Лазо, 10 (56.47 м) - Фото 2
    2-комнатная квартира, общая площадь 56м², жилая 30м², кухня 8м²

    Назовите при звонке данный номер объявления - 541045 Продается уютная и просторная 2-комнатная квартира на 8 этаже 10-этажного дома. Площадь 56,47 м В квартире имеется кухня площадью 8,23 м.Это отличное предложение для тех, кому важен комфорт и удобство....
    • 56 м²
    • 2-ком
    • 8/10 эт.
    • панельный
    5 500 000 Р
    Агент
    +7 (913) Показать номер
    Посмотреть контакты
    3-к кв. Кемеровская область, Междуреченск просп. 50 лет Комсомола, 46 ... - Фото 1
    3-к кв. Кемеровская область, Междуреченск просп. 50 лет Комсомола, 46 ... - Фото 2
    3-комнатная квартира, общая площадь 61м², кухня 6м²

    Продам 3х. комнатную квартиру в восточном районе.Квартира находится на первом этаже. Стены утеплены и отделаны шумоизоляционными панелями. Во всех комнатах установлены натяжные потолки. Окна пластиковые. В коридоре и на кухне, на полу, уложена керамическая...
    • 61 м²
    • 3-ком
    • 1/5 эт.
    • панельный
    5 500 000 Р
    Агент
    +7 (918) Показать номер
    Посмотреть контакты
    3-к кв. Кемеровская область, Междуреченск просп. Строителей, 37 (76.1 ... - Фото 1
    3-к кв. Кемеровская область, Междуреченск просп. Строителей, 37 (76.1 ... - Фото 2
    3-комнатная квартира, общая площадь 76м², кухня 8м²

    Продаю трёх комнатную квартиру площадью 76.1 кв. м.Квартира находится в современном многоквартирном доме. Строительство выполнено с использованием высококачественных материалов, обеспечивающих долговечность и надежность. Вход в подъезд оборудован видеодомофоном,...
    • 76 м²
    • 3-ком
    • 5/5 эт.
    • панельный
    5 300 000 Р
    Агент
    +7 (939) Показать номер
    Посмотреть контакты
    3-к кв. Кемеровская область, Междуреченск Интернациональная ул., 11 ... - Фото 1
    3-к кв. Кемеровская область, Междуреченск Интернациональная ул., 11 ... - Фото 2
    3-комнатная квартира, общая площадь 67м², кухня 9м²

    Просторная трехкомнатная квартира в доме из кирпича с продуманной планировкой и современным ремонтом прекрасный выбор для комфортной жизни семьи. Жилая площадь в 67 квадратных метров включает отдельные комнаты и вместительный холл, что способствует эффективному...
    • 67 м²
    • 3-ком
    • 4/4 эт.
    • кирпичный
    5 500 000 Р
    Агент
    +7 (939) Показать номер
    Посмотреть контакты

    Не нашли подходящего объявления?

    Оставьте заявку, и наши риэлторы подберут квартиру в районе Междуреченска

    (0)