4 400 000 Р 54 400 $ или 47 120

Информация о коттедже

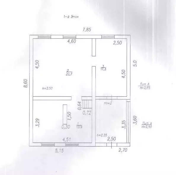
186 м2
Площадь
2
Этажность
10 cоток
Участок

Дополнительная информация

Дом продаётся вместе с участком
есть
Развернуть
Агент
+7 (939) 038-73-89
Начать чат с агентом

Дом в Кемеровская область, Новокузнецк ул. Красилова, 96 (186 м)

Назовите при звонке данный номер объявления - 537408 Продается теплый уютный дом жилой дом. В доме установлены новые межкомнатные двери. Пластиковые окна сберегут вам тепло и тишину. Стены внутри дома оклеены обоями, создающими приятную, расслабляющую обстановку. Потолки в комнатах подвесные. Просторная кухня принесет приятные эмоции в процессе приготовления пищи. На кухне установлена мебель, изготовленная под заказ со встроенной бытовой техникой. Подключен центральный водопровод и слив (септик) Дом имеет совмещенный санузел, включающий в себя бойлер, ванну, раковину, унитаз. Вся сантехника новая. Электро проводка заменена на медную и установлена согласно СНиП и правилам пожарной безопасности. Отопление за счет твердотопливного котла длительного горения (Котел Стимул ДГ-1 на 20 кВт), для бесперебойной работы котла установлен ИБП и аккумулятор на 120 а*h. в среднем на 10-12 часов котла без электричества. Предусмотрена возможность обустройства второго этажа, что позволит увеличить жилую площадь. Имеется гараж для легкового автомобиля. Рядом находятся остановка, магазины, дет.сад. Дом и земля в собственности. На участке имеются постройки: баня, углярка, стайка (с возможностью сделать мастерскую), погреб, гараж (капитальный), дровник. На участке установлена качели, мангальная зона, посажены яблони, клубника, смородина, малина, вишня. Земельный участок ухоженный, плодородный. Хорошие, тихие и доброжелательные соседи.Улица с асфальтовым покрытием, установлено уличное освещение, зимой всегда чистится.В следующем году планируется газификация данного района - договор на руках.Наша компания является официальным партнером ведущих банков России Поможем оформить ипотеку на максимально выгодных для вас условиях Рассмотрим варианты рассрочки.Окажем помощь в оформление и подготовки пакета документов любой сложности. Номер объекта: 1/537408/21572

Читать полностью

    Для того, чтобы купить 2-этажный коттедж по адресу: Новокузнецк, Куйбышевский, ул. Красилова, 96, позвоните по телефону +7 (939) 038-73-89. Торопитесь! Объявление №50014756433 о продаже двухэтажного коттеджа опубликовано 29 октября 2025.

    Позвонить Написать
    4 400 000 Р54 400 $ или 47 120
    Агент
    +7 (939) 038-73-89
    Начать чат с агентом
    Похожие предложения
    Дом в Кемеровская область, Новокузнецк ул. Красилова, 42 (71 м) - Фото 1
    Дом в Кемеровская область, Новокузнецк ул. Красилова, 42 (71 м) - Фото 2
    2 этажа, общая площадь 70м², участок 9 соток

    Назовите при звонке данный номер объявления - 537244 Куйбышевский район, г.Новокузнецк, ул. Красилова. Продается уютный дом в городе Новокузнецк на улице Красилова, общая площадь дома составляет 70.9 кв.м. Пять километров и вы в центре, от дома до остановки...
    • 2 эт.
    • 70 м²
    • 9 сот.
    4 300 000 Р
    Агент
    +7 (939) Показать номер
    Посмотреть контакты
    Дом в Кемеровская область, Новокузнецк ул. Верхне-Редаково, 37 (97 м) - Фото 1
    Дом в Кемеровская область, Новокузнецк ул. Верхне-Редаково, 37 (97 м) - Фото 2
    2 этажа, общая площадь 97м², участок 12 соток

    Продается дом в Редаково.Общая площадь 97 м2.Дом построен из бруса. Проводка медная. Хорошая крыша.Отапливается котлом. Центральное водоснабжение. Септик.Цокольный этаж: кухня гостиная, котельная, санузел, ванная.Первый этаж: три спальни, холодная веранда,...
    • 2 эт.
    • 97 м²
    • 12 сот.
    4 500 000 Р
    Агент
    +7 (981) Показать номер
    Посмотреть контакты
    Дом в Кемеровская область, Новокузнецк Батумская ул., 16 (88 м) - Фото 1
    Дом в Кемеровская область, Новокузнецк Батумская ул., 16 (88 м) - Фото 2
    2 этажа, общая площадь 87м², участок 6 соток

    Продам дом в Куйбышевском районе, по ул. Батумская . Дом 2 этажа. Дом прочный. Крыша новая. Окна ПВХ. Утеплен и отделан сайдингом с 4 сторон. У дома сделан большой навес, для создания удобства в зимнее время (не убирать снег зимой.На первом этаже:...
    • 2 эт.
    • 87 м²
    • 6 сот.
    4 500 000 Р
    Агент
    +7 (939) Показать номер
    Посмотреть контакты
    Дом в Кемеровская область, Новокузнецк проезд Авроры (94 м) - Фото 1
    Дом в Кемеровская область, Новокузнецк проезд Авроры (94 м) - Фото 2
    2 этажа, общая площадь 93м², участок 6 соток

    Предлагаем в продажу дом в Точилино Дом бревенчатый, обшит сайдингом, 2-этажный, новая крыша из профлиста, высокий фундамент.1. этаж: большая просторная кухня, санузел, душевая, печка, твёрдотопливный котел длительного горения находится в отдельном помещении,...
    • 2 эт.
    • 93 м²
    • 6 сот.
    4 500 000 Р
    Агент
    +7 (985) Показать номер
    Посмотреть контакты
    Дом в Кемеровская область, Новокузнецк ул. Ясная Поляна, 2 (128 м) - Фото 1
    Дом в Кемеровская область, Новокузнецк ул. Ясная Поляна, 2 (128 м) - Фото 2
    2 этажа, общая площадь 128м², участок 4 сотки

    Код объекта: 1370018. СРОЧНАЯ ПРОДАЖА Продаю уютный, светлый, тёплый двухэтажный дом с площадью 128м. в Куйбышевском районе. На первом этаже сделан новый евро ремонт, просторная светлая кухня мечта любой хозяйки, две спальни, ванная комната (пол с подогревом...
    • 2 эт.
    • 128 м²
    • 4 сот.
    4 300 000 Р
    Агент
    +7 (981) Показать номер
    Посмотреть контакты

    Не нашли подходящего объявления?

    Оставьте заявку, и наши риэлторы подберут купить дом в районе Новокузнецка

    (0)