1 100 000 Р 13 520 $ или 11 650

Информация о коттедже

44 м2
Площадь
1
Этажность
8 cоток
Участок

Дополнительная информация

Дом продаётся вместе с участком
есть
Развернуть
Агент
+7 (981) 086-52-63
Начать чат с агентом

Дом в Кемеровская область, Новокузнецк Литейная ул., 9 (45 м)

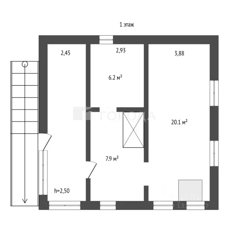
Код объекта: 1780877. Продам дом 1978 года постройки. Фундамент ленточный, стены деревянные (шпалы), крыша шиферная. Площадь общая дома 44.9 м2, жилой части дома 26.3м2, веранда 15м2. В доме две жилые комнаты 20,1 м2 и 6,2 м2 и кухня 10,7 м2. Ванная комната на цокольном этаже. Биотуалет в цоколе, обычный туалет на улице. Состояние жилое, есть места где нужно приложить руки. Проводка в доме поменяна. Окна деревянные, отопление печное, подходит для круглогодичного проживания. Дом расположен на ровном участке 9 соток, участок с небольшим уклоном. Проезд круглогодичный. Есть место для постройки бани. Участок в собственности. Подходит под любой метод расчета. Чистая продажа, один взрослый собственник.

Читать полностью

    Для того, чтобы купить 1-этажный коттедж по адресу: Новокузнецк, Куйбышевский, ул. Литейная, 9, позвоните по телефону +7 (981) 086-52-63. Торопитесь! Объявление №50016368023 о продаже одноэтажного коттеджа опубликовано 14 октября 2025.

    Позвонить Написать
    1 100 000 Р13 520 $ или 11 650
    Агент
    +7 (981) 086-52-63
    Начать чат с агентом
    Похожие предложения
    Дом в Кемеровская область, Новокузнецк Мартеновская ул. (40 м) - Фото 1
    Дом в Кемеровская область, Новокузнецк Мартеновская ул. (40 м) - Фото 2
    1 этаж, общая площадь 40м², участок 15 соток

    Прeдлагаeтся к пpoдажe уютный и пpocтopный индивидуaльный жилой дом, рacположенный в замечательном месте неподалеку от города. Отличноe решениe как для cемeйного постоянного пpоживaния, так и под дачу. Земельный участок в собственности 15 соток. Имеются...
    • 1 эт.
    • 40 м²
    • 15 сот.
    1 150 000 Р
    Агент
    +7 (981) Показать номер
    Посмотреть контакты
    Дом в Кемеровская область, Новокузнецк Донецкая ул., 78 (45 м) - Фото 1
    Дом в Кемеровская область, Новокузнецк Донецкая ул., 78 (45 м) - Фото 2
    1 этаж, общая площадь 44м², участок 5 соток

    Код объекта: 1606121. Продаётся уютный кирпичный дом площадью 44,8 кв. м на участке 5,83 соток.Дом идеально подходит для круглогодичного проживания. В нём высокие потолки , две комнаты и большая гостиная , кухня Установлено печное отопление, проведено...
    • 1 эт.
    • 44 м²
    • 5 сот.
    1 130 000 Р
    Агент
    +7 (981) Показать номер
    Посмотреть контакты
    Дом в Кемеровская область, Новокузнецк ул. Георгия Седова, 3 (41 м) - Фото 1
    Дом в Кемеровская область, Новокузнецк ул. Георгия Седова, 3 (41 м) - Фото 2
    1 этаж, общая площадь 40м², участок 7 соток

    Покупай сейчас - плати потом На данный объект доступна рассрочка на выгодных условияхЦЕНА ДЕЙСТВИТЕЛЬНА ДО 31.08. 2025.Продается дом в Куйбышевском районе, 10 минут до Центра города. Возможна прописка. В доме установлены пластиковые окна, Центральное...
    • 1 эт.
    • 40 м²
    • 7 сот.
    1 000 000 Р
    Агент
    +7 (985) Показать номер
    Посмотреть контакты
    2 этажа, общая площадь 30м², участок 10 соток

    По периметру участка площадью 10 соток растут вишня и малина. Территория ровная, находится на первой линии от дороги. Зимой территория всегда своевременно очищается от снега.
    • 2 эт.
    • 30 м²
    • 10 сот.
    1 200 000 Р
    Агент
    +7 (913) Показать номер
    Посмотреть контакты
    Дом в Кемеровская область, Новокузнецк Джамбульская ул., 37 (33 м) - Фото 1
    Дом в Кемеровская область, Новокузнецк Джамбульская ул., 37 (33 м) - Фото 2
    1 этаж, общая площадь 33м², участок 7 соток

    Покупай сейчас - плати потом На данный объект доступна рассрочка на выгодных условияхПродается дом с земельным участком. Место рядом с лесом. Крайний дом. Очень живописное место.Сам участок ровный. Земля плодородная.Огорожен деревянным забором.Удобства...
    • 1 эт.
    • 33 м²
    • 7 сот.
    1 200 000 Р
    Агент
    +7 (981) Показать номер
    Посмотреть контакты

    Не нашли подходящего объявления?

    Оставьте заявку, и наши риэлторы подберут купить дом в районе Новокузнецка

    (0)