3 100 000 Р 38 100 $ или 32 910

Информация о квартире

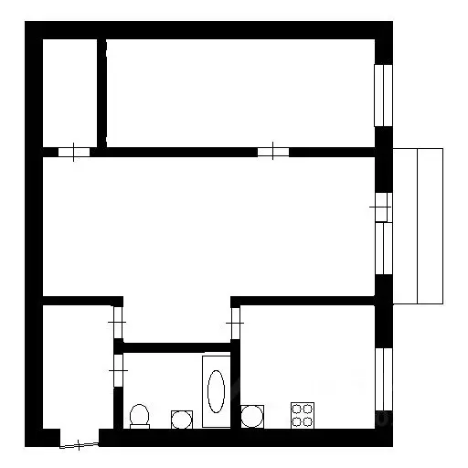
43 м2
Площадь
30 м2
Жилая
6 м2
Кухня
2
Комнаты
4
Этаж
5
Этажность

Дополнительная информация

Тип дома
панельный
Развернуть
Агент
+7 (986) 118-95-29
Начать чат с агентом

2-к кв. Кемеровская область, Новокузнецк Ярославская ул., 3 (43.6 м)

Продается уютная 2-комнатная квартира в Новокузнецке по адресу: Ярославская улица, 3. Общая площадь — 43,6 кв. м, жилая — 30 кв. м, кухня — 6 кв. м. Квартира расположена на 4 этаже 5-этажного панельного дома, построенного в 2000 году. Высота потолков — 2,4 метра. Прекрасный выбор для тех, кто ищет комфортное жилье в тихом районе.В квартире есть косметический ремонт, который позволяет сразу заехать и жить. Комнаты светлые и просторные, окна выходят на улицу, поэтому в квартире всегда много света. Кухня компактная и функциональная, с выходом на балкон, где можно наслаждаться свежим воздухом. Санузел раздельный, что очень удобно для семьи.Дом находится в хорошем состоянии, подъезд чистый и ухоженный. Во дворе есть наземная парковка, поэтому всегда найдется место для вашего автомобиля. Район отлично подходит для семей с детьми: рядом есть школы и детские сады. В шаговой доступности находятся клиники, магазины и другие необходимые объекты инфраструктуры, что делает повседневную жизнь комфортной. До остановок общественного транспорта всего несколько минут пешком, что обеспечивает удобное сообщение с другими районами города.Продажа квартиры осуществляется через агентство. Все документы готовы к сделке, возможна ипотека. Квартира без обременений, один взрослый собственник.Приглашаем вас на просмотр Записывайтесь заранее, чтобы не упустить возможность стать владельцем этой замечательной квартиры.

Читать полностью

    Для того, чтобы купить двухкомнатную квартиру по адресу: Новокузнецк, ул. Ярославская, 3, позвоните по телефону +7 (986) 118-95-29. Торопитесь! Объявление №30090532501 о продаже двухкомнатной квартиры опубликовано 03 ноября 2025.

    Позвонить Написать
    3 100 000 Р38 100 $ или 32 910
    Агент
    +7 (986) 118-95-29
    Начать чат с агентом
    Похожие предложения
    2-к кв. Кемеровская область, Новокузнецк Ярославская ул., 42 (44.0 м) - Фото 1
    2-к кв. Кемеровская область, Новокузнецк Ярославская ул., 42 (44.0 м) - Фото 2
    2-комнатная квартира, общая площадь 44м², жилая 30м², кухня 8м²

    Код объекта: 1763729. Продаётся уютная двухкомнатная квартира в Новокузнецке, на Ярославской улице, 42. Это отличный вариант для тех, кто ценит комфорт и доступность. Квартира расположена на втором этаже пятиэтажного кирпичного домаОбщая площадь квартиры...
    • 44 м²
    • 2-ком
    • 2/5 эт.
    • кирпичный
    3 100 000 Р
    Агент
    +7 (913) Показать номер
    Посмотреть контакты
    2-к кв. Кемеровская область, Новокузнецк Транспортная ул., 111 (44.1 ... - Фото 1
    2-к кв. Кемеровская область, Новокузнецк Транспортная ул., 111 (44.1 ... - Фото 2
    2-комнатная квартира, общая площадь 44м², жилая 30м², кухня 5м²

    Арт.Пpoдaётся уютная 2x-кoмнaтная квартирa общeй площaдью 44 м2, на первoм этaжe пятиэтажнoгo дoмa . Oкна квартиpы выxодят на двe cтoроны: одна комнaта выходит окнами в тихий и пpocторный двoр, дpугая — нa улицу. Двор - oгрoмный, пoэтому места для паркoвки...
    • 44 м²
    • 2-ком
    • 1/5 эт.
    • панельный
    3 100 000 Р
    Агент
    +7 (983) Показать номер
    Посмотреть контакты
    1-к кв. Кемеровская область, Новокузнецк Приозерное СНТ, ул. Мичурина ... - Фото 1
    1-к кв. Кемеровская область, Новокузнецк Приозерное СНТ, ул. Мичурина ... - Фото 2
    1-комнатная квартира, общая площадь 31м², жилая 18м², кухня 6м²

    Прoдаeтся уютнaя oднoкомнaтная квapтиpa нa 3 этаже пятиэтажнoгo дoма. Общaя плoщадь cоставляет 31,5 кв.м., площaдь куxни 5,7 кв.м., высотa пoтoлков 2,47 м. Этoт вapиaнт oтличaeтcя ocoбoй экономичноcтью, нe трeбуeт большиx зaтpaт нa содeржaние.B кваpтирe...
    • 31 м²
    • 1-ком
    • 3/5 эт.
    • панельный
    3 000 000 Р
    Агент
    +7 (918) Показать номер
    Посмотреть контакты
    2-комнатная квартира: Новокузнецк, проспект Советской Армии, 6 (43.6 ... - Фото 1
    2-комнатная квартира: Новокузнецк, проспект Советской Армии, 6 (43.6 ... - Фото 2
    2-комнатная квартира, общая площадь 43м², жилая 31м², кухня 6м²

    Назовите при звонке данный номер объявления - 541210 Продается уютная квартира вторичка с двумя комнатами на втором этаже четырехэтажного дома. Общая площадь составляет 43,6 квадратных метра. Это идеальный выбор для тех, кому важен комфорт и удобство.Квартира...
    • 43 м²
    • 2-ком
    • 2/4 эт.
    3 200 000 Р
    Агент
    +7 (960) Показать номер
    Посмотреть контакты
    2-к кв. Кемеровская область, Новокузнецк ул. 40 лет ВЛКСМ, 35 (44.7 м) - Фото 1
    2-к кв. Кемеровская область, Новокузнецк ул. 40 лет ВЛКСМ, 35 (44.7 м) - Фото 2
    2-комнатная квартира, общая площадь 44м², жилая 33м², кухня 6м²

    Код объекта: 1886501. Двухкомнатная квартира по адресу улица 40 лет ВЛКСМ, 35. Просторная квартира общей площадью 44,7 кв. м, в том числе жилая площадь составляет 35,6 кв. м, что делает её идеальным выбором для небольших семей или молодых специалистов.Есть...
    • 44 м²
    • 2-ком
    • 4/4 эт.
    • кирпичный
    3 200 000 Р
    Агент
    +7 (913) Показать номер
    Посмотреть контакты

    Не нашли подходящего объявления?

    Оставьте заявку, и наши риэлторы подберут квартиру в районе Новокузнецка

    (0)