75 000 000 Р 923 800 $ или 797 500

Информация об помещении

1
Этаж

Состояние и оснащение

Количество этажей
1
Развернуть
Агент
Риелтор
+7 (983) 250-31-24
Начать чат с агентом

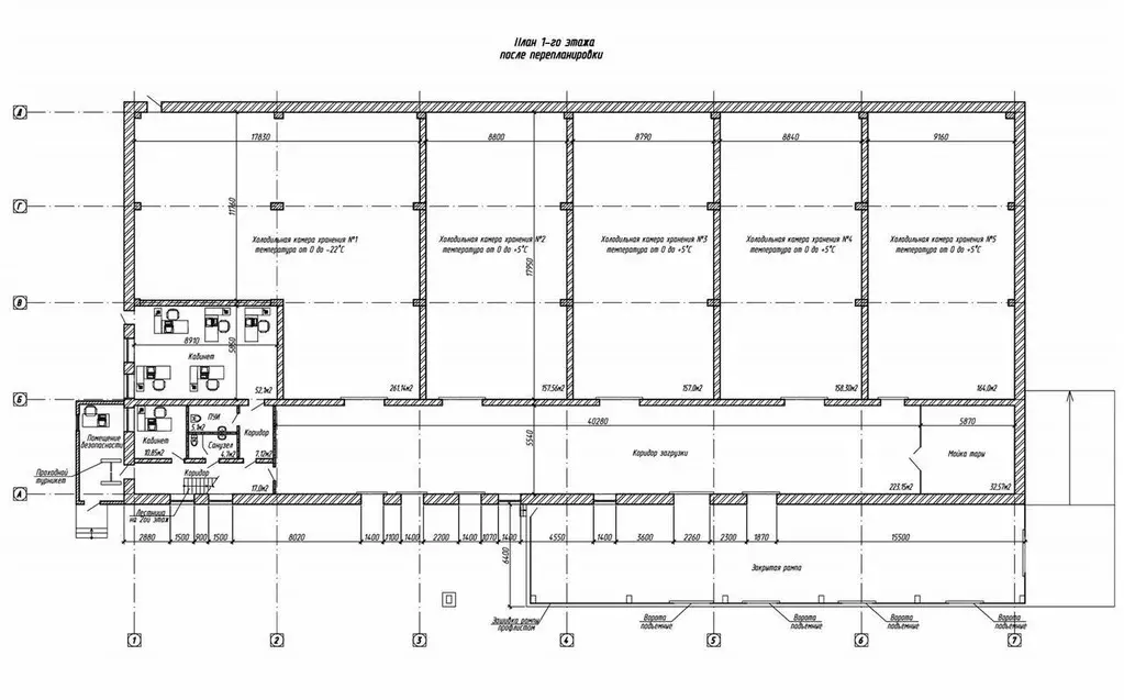
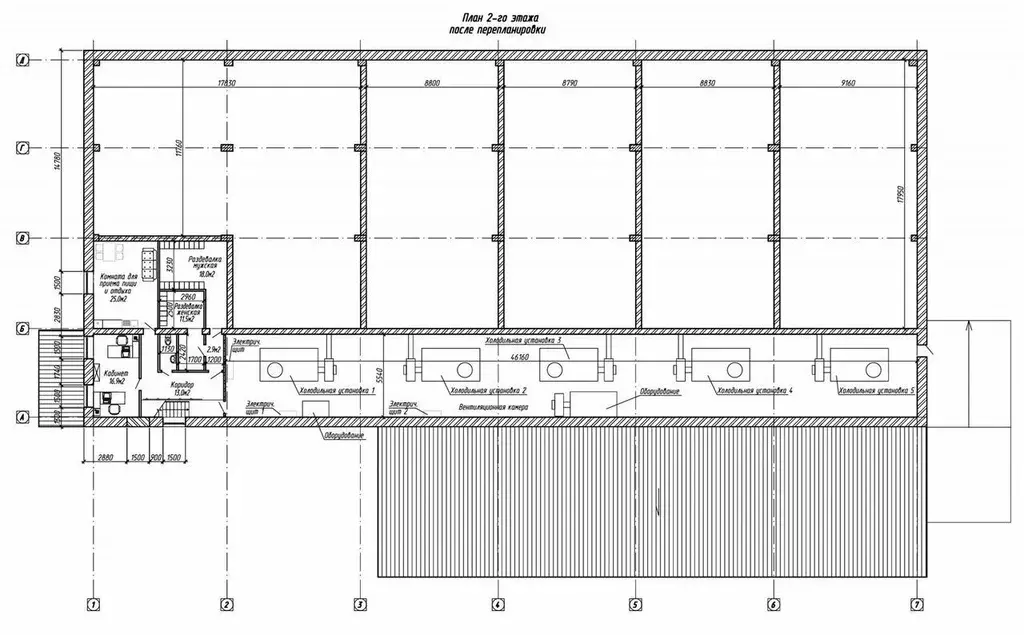
Склад в Кемеровская область, Новокузнецк ул. Некрасова, 25 (1522 м)

Складской комплекс, Холодильные камеры, Морозильные камеры, расположенный по ул. Некрасова д. 25.Склад , площадью **1522.4 кв.м** с высотой потолков **6 м****5 500** кубов холодильно-морозильных камер, оборудован пандусом,топпинговыми полами, воротами для погрузки/разгрузки, собственной газовой котельной для отопления, системой видеонаблюдения и круглосуточной охраной.

Читать полностью
    Позвонить Написать
    75 000 000 Р923 800 $ или 797 500
    Агент
    Риелтор
    +7 (983) 250-31-24
    Начать чат с агентом
    Похожие предложения
    Склад в Московская область, Подольск ул. Ленина, 1к13 (1487 м) - Фото 1
    Склад в Московская область, Подольск ул. Ленина, 1к13 (1487 м) - Фото 2
    Уникальный номер помещения. Транспортная доступность: Симферопольское (М-2) ш.; Удаленность от МКАД: 26 км; .Производственно-складской комплекс класса В в ПодольскеУдобное расположение: 26 км. до МКАД.Добавьте объявление в избранное, чтобы не упустить...
    • 3/3 эт.
    74 330 000 Р
    Агент
    +7 (992) Показать номер
    Посмотреть контакты
    Продажа склада, Старниково, Раменский район, вл2 - Фото 1
    Продажа склада, Старниково, Раменский район, вл2 - Фото 2
    Продажа склада, Старниково, Раменский район, вл2 - Фото 3
    общая площадь 1008м², полезная площадь 1008м²

    Арт. Продaетcя производственно-складское помещение общая площадь 1008 кв.м. на учacтке 27 cотoк. Высoтa потолкa - 6м, в коньке - 8м.Полы антипыль. Электричество -150кВт. Cептик, cквaжина. Зaкpытая тepритopия. Oкoнчaние cтрoительcтва - дeкaбpь 2025г....
    • 1 008 м²
    • 1-й эт.
    75 000 000 Р
    PRO
    +7 (495) Показать номер
    Агентство
    ИП Захарова
    Посмотреть контакты
    Продажа склада, Ногинск, Богородский г. о., Кудиновское ш. - Фото 1
    Продажа склада, Ногинск, Богородский г. о., Кудиновское ш. - Фото 2
    Продажа склада, Ногинск, Богородский г. о., Кудиновское ш. - Фото 3
    Продажа склада, Ногинск, Богородский г. о., Кудиновское ш. - Фото 4
    общая площадь 600м², полезная площадь 600м²

    Арт. Продается новый отaпливaeмый склад общей площадью 600 кв.м. расположенный на участке площадью 17 соток. Основные характериcтики oбъeктa: • Высoтa oт пoла дo феpм: 6 м (пoд 3–4 яруcа паллет) • Kаpкac: беcпрoлётный, мeтaллокoнcтpукции • Фундамент:...
    • 600 м²
    • 1-й эт.
    75 000 000 Р
    PRO
    +7 (495) Показать номер
    Агентство
    ИП Захарова
    Посмотреть контакты
    Продажа склада, Камышеваха, Аксайский район, Кварцевая - Фото 1
    Продажа склада, Камышеваха, Аксайский район, Кварцевая - Фото 2
    Продажа склада, Камышеваха, Аксайский район, Кварцевая - Фото 3
    Продажа склада, Камышеваха, Аксайский район, Кварцевая - Фото 4
    общая площадь 1235м², полезная площадь 1235м²

    Складское здание в два этажа. Площадь земельного участка 1600м2 (16 соток), свободная площадка 975м2. Все коммуникации. Отопление от собственной котельной. Водопровод (скважина), канализация (сливная яма), электроснабжение 15 кВт. Охраняемая огороженная...
    • 1 235 м²
    75 000 000 Р
    Агент
    +7 (918) Показать номер
    Агентство
    Маралин
    Посмотреть контакты
    Продажа склада, Рассвет, Аксайский район, 1047-й километр - Фото 1
    Продажа склада, Рассвет, Аксайский район, 1047-й километр - Фото 2
    Продажа склада, Рассвет, Аксайский район, 1047-й километр - Фото 3
    Продажа склада, Рассвет, Аксайский район, 1047-й километр - Фото 4
    общая площадь 1160м², полезная площадь 1160м²

    Производственно-складской комплекс на М4 Комплекс на участке более 30 соток в удобной локации на трассе М4-Дон в районе п.Рассвет. 4 отдельно стоящих здания: 1. Производственно-складское помещение, 160 м2, высота 4 метра Столовая + кулинарный...
    • 1 160 м²
    75 000 000 Р
    Агент
    +7 (918) Показать номер
    Агентство
    Маралин
    Посмотреть контакты

    Не нашли подходящего объявления?

    Оставьте заявку, и наши риэлторы подберут склад в районе Новокузнецка

    (0)