684 900 Р 8 440 $ или 7 280

Информация об помещении

1
Этаж

Состояние и оснащение

Количество этажей
1
Развернуть
Агент
Риелтор
+7 (983) 250-31-24
Начать чат с агентом

Склад в Кемеровская область, Новокузнецк ул. Некрасова, 25 (1522 м)

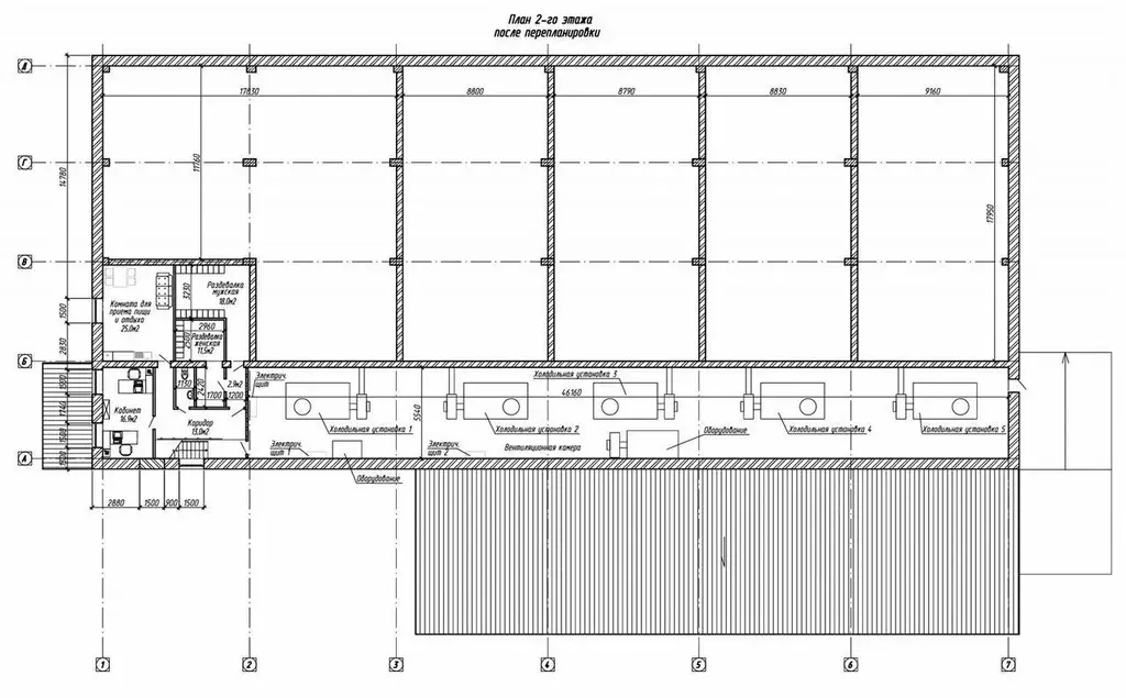
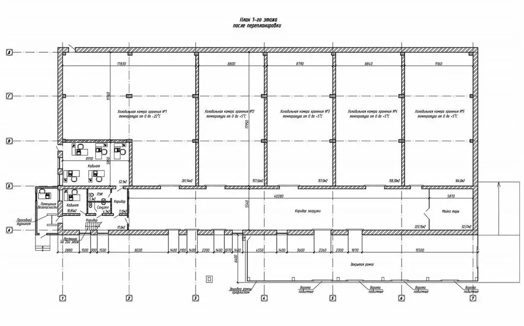
Склад, площадью **1522.4 кв.м** с высотой потолков **6 м**Аренда складского комплекса, Холодильные камеры, Морозильные камеры, расположенный по ул. Некрасова д. 25.Характеристики комплекса:• Объём камер хранения — 5 500 куб. м• Температурные режимы: от 0 до +5 C и до -23 CВ перечень предоставляемых услуг :• Полная аренда склада с офисными помещениями, раздевалками и другими инфраструктурными удобствами.• Ответственное хранение: приёмка товара, его хранение и последующая доставка по торговым сетям — как федеральным и региональным, так и частным магазинам. Предоставляется полный пакет бухгалтерской отчётности.

Читать полностью
    Позвонить Написать
    684 900 Р8 440 $ или 7 280
    Агент
    Риелтор
    +7 (983) 250-31-24
    Начать чат с агентом
    Похожие предложения
    Склад в Ульяновская область, Ульяновск ул. Магистральная, 1 (1500 м) - Фото 1
    Склад в Ульяновская область, Ульяновск ул. Магистральная, 1 (1500 м) - Фото 2
    ОписаниеСклад ВмБЕЗ КОМИССИИ ДЛЯ АРЕНДАТОРА Номер объекта в базе 19124Площадь: 3000 кв.м, можно частями от 1500 кв.м.Этаж: 1Все коммуникации проведеныДоступ в помещение: 24/7Количество входов: 4Коммунальные платежи: оплачиваются отдельно Электроснабжение:...
    • 1/1 эт.
    675 000 Р
    Агент
    +7 (917) Показать номер
    Посмотреть контакты
    Склад в Московская область, Реутов Северный проезд, 4 (529 м) - Фото 1
    Склад в Московская область, Реутов Северный проезд, 4 (529 м) - Фото 2
    1017615 . Помещение в производственно-складском комплексе в гор. Реутов. Удобные выезд на федеральную трассу М7. Индустриальный парк расположен в одном километре от МКАД. Напротив крупный жилой массив с развитой инфраструктурой, который обеспечивает доступ...
    • 3/3 эт.
    687 700 Р
    Агент
    +7 (916) Показать номер
    Посмотреть контакты
    Склад в Самарская область, Самара пос. Красная Глинка, проезд 2-й ... - Фото 1
    Склад в Самарская область, Самара пос. Красная Глинка, проезд 2-й ... - Фото 2
    Аренда отдельно-стоящее промышленное здание 2743, 5 кв. м на земельном участке 3170 кв. мадрес: Самарская область, г. Самара, п. Красная Глинка, 2-й Южный пр. , 23 (территория завода Электрощит). От собственника, без комиссии. Основные характеристики:-...
    • 1/1 эт.
    685 875 Р
    Агент
    +7 (933) Показать номер
    Посмотреть контакты
    Склад в Ростовская область, Ростов-на-Дону Днепропетровская ул., 83 ... - Фото 1
    Склад в Ростовская область, Ростов-на-Дону Днепропетровская ул., 83 ... - Фото 2
    Холодный склад площадью 966 кв. м Высокая мощность 250 кВт по адресу ул. Днепропетровская, 83Характеристики и преимущества:- одноэтажный склад - удобная транспортная доступность, своя зона парковки на 7 м/мест - 2-е ворот- заезд с уровня 0 - разрешенная...
    • 1/1 эт.
    676 200 Р
    Агент
    +7 (988) Показать номер
    Посмотреть контакты
    Склад в Татарстан, Казань ул. Дементьева, 2Гк9 (800 м) - Фото 1
    Склад в Татарстан, Казань ул. Дементьева, 2Гк9 (800 м) - Фото 2
    Сдается в аренду Складское Производственное помещение общей площадью 800 кв.м три этажа.Рассматривается как полная так и частичная сдача.Второй этаж с делением площади,третий опен спейс.4 ворот и 2 входной группы К\У оплачивается отдельно.Мощность 50...
    • 1/3 эт.
    680 000 Р
    Агент
    +7 (986) Показать номер
    Посмотреть контакты

    Не нашли подходящего объявления?

    Оставьте заявку, и наши риэлторы подберут склад в районе Новокузнецка

    (0)